28120 236th Avenue SE Maple Valley, WA 98038

Covered front porch

Front entry with a coat closet to the right.

Formal living area as you enter.

Dining area adjacent to the kitchen.

Light & Bright kitchen with lot's of counter space.

Generous size family room with access to the patio, deck, another coat closet, 3 car garage and the laundry plus 1/2 bath.

Laundry and 1/2 bath off the family room.

Bedroom 1

Bedroom 2

Upper level main bath with a skylight.

Primary bedroom with vaulted ceilings.

Primary with dual sinks. Walk-in closet is to the left and a privacy door for toilet and shower/tub combo.

Concrete patio and Trex Deck for your outdoor activities.

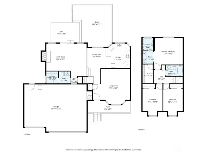
Lower level floorplan

Upper level floorplan
28120 236th Avenue SE
Maple Valley, WA 98038
$699,950
Residential
3 Beds
2.50 Baths
1660 SqFt
Pending
Welcome to Rosewood Parke in the sought-after Tahoma School District! This well-maintained 3-bedroom, 2.5-bath home offers comfort, space, and functionality. The inviting layout features generous living areas, a bright kitchen with ample cabinetry and counter space, and a seamless flow ideal for both everyday living and entertaining. Upstairs, you’ll find three spacious bedrooms including a relaxing primary suite with a private bath and plenty of closet space.Outside, enjoy a fully fenced yard, patio and Trex deck - perfect for pets, play, and summer gatherings. The rare 3-car garage provides abundant room for vehicles, storage, hobbies, or a home workshop. Located in the desirable Rosewood Parke community, this home offers a great neighborhood feel while still being conveniently close to shopping, dining, parks, and commuter routes.Don’t miss the opportunity to own a beautiful home in a fantastic location with top-rated Tahoma schools. Schedule your showing today!
Property Features
Community: Maple Valley
Tri-Level
View: Territorial
Cable TV
Deck
Fenced-Fully
Gas Available
Patio
Bus Line Nearby: Yes
Exterior: Wood Products
Roof: Composition
Parking: Attached Garage
Year Built: 1991
HOA Dues: $360
2026 Taxes: $7070.01
Buyer Broker Comp.: 2.5%
Listing #: 2489835
Lot Details
Lot Size: 0.16 acres
Curbs
Paved
Sidewalk
Appliances That Stay
Dishwasher
Disposal
Dryer
Microwave
Refrigerator
Stove(s)/Range(s)
Washer
Interior
Bath Off Primary
Fireplace
Skylight(s)
Vaulted Ceiling(s)
Walk-In Closet(s)
Dbl Pane/Storm Window
Cooling: None
Heating: Forced Air
Natural Gas
Fireplaces: 1
Community Features
CCRs
Park
Playground
Schools
District: Tahoma
Elem: Buyer To Verify
Middle: Buyer To Verify
High: Tahoma Snr High
Call or Email:
Grace Wamwere
What's Near 28120 236th Avenue SE Maple Valley, WA 98038?

Information is based on data available to the associate, including county records. The information has not been verified by the associate and all information presented should be verified by the buyer. Listings are provided by Northwest Multiple Listing Service as distributed by MLS GRID. The associate represented on this web site is not a multiple listing service but is a member of a local MLS.
DMCA Notice