
Live in a quiet cul-de-sac with like homes! Well built in 2017 & tastefully refreshed!

Fully fenced backyard with new lawn! Oversized patio. Border for flowers & veggies.

Flexible Great Room to adjust for your changing needs! Slider from dining space to backyard. Mini split ac/heat for year-round comfort.

Stainless steel appliances, to-the-ceiling cabinetry, granite counters. Light & Bright!

Spacious living room area with nearly floor-to-ceiling windows! Vinyl-plank hardwood flooring that withstands daily living.

Primary suite with K-I-N-G Sized bed, room for side tables and more! NEW carpet & FRESH paint! Attached 5-Piece bath and large WIC.

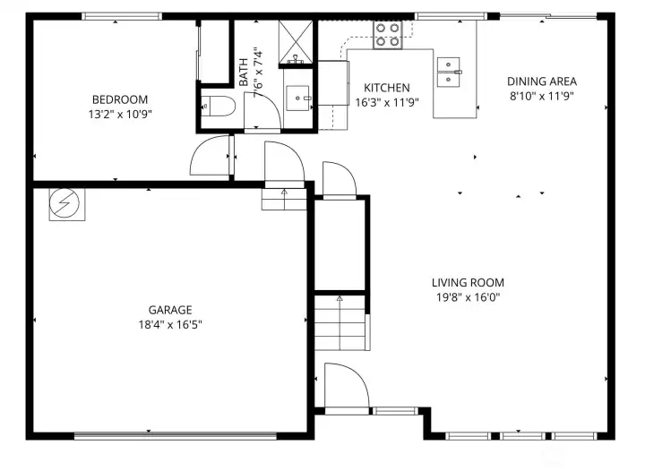
Floor plan of the main level. Note upper left bedroom and close bath.

3 more bedrooms + large family room/loft. Two full baths on this level.

Dining space & kitchen with breakfast bar! Down hall is bedroom. 3/4 bath located through doorway between kitchen & bedroom..

Fun & easy kitchen to work in being so accessible to the rest of the Great Room & backyard. Range is NEW!

Main-floor bedroom with generous closet. Next door to 3/4 bath. NEW carpeting & paint!

Main level 3/4 bath. Generous shower stall to back, beautiful vanity with oversized picture-like mirror.

Stairway from main level just to left of clock. Arrival to the Family Room/Loft. The doors in the background are to side-bedrooms & bath.

Upper level large laundry room. Washer & dryer Stay! Convenient location!!

Family Room/Loft as arrive upstairs. NEW carpet & FRESH paint! Ready for you!

Primary Suite! Oversized for all your favorite pieces! NEW carpet & FRESH paint! Sweet Dreams!

Primary suite bath with duel sinks and oversized mirrors. Separate room for tub/shower & toilet. Makes getting ready just a bit easier!

A walk-in-closet to shout about!! Clean & fresh and ready for your possessions!

Side bedroom. NEW carpet & Fresh Paint!

Full bath with tub & shower; oversized vanity! Located between two side bedrooms for ease.

4th bedroom!! 2 of 4 bedrooms have walk-in-closets! Who will get those??

Fully Fenced back yard; luscious new sod & planting border. Patio and hard-scape that extends around the home.

Private cul-de-sac nearby greenery of Stewart Heights Park, Pool, Fields and Baseball diamonds!