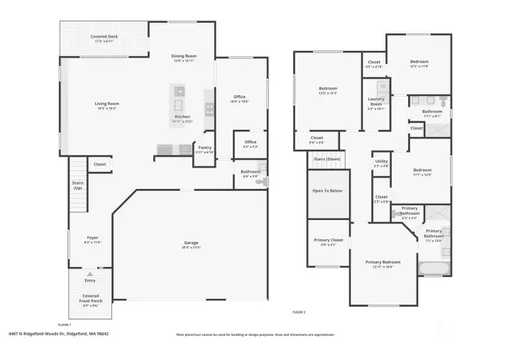
4407 N Ridgefield Woods Drive Ridgefield, WA 98642
4407 N Ridgefield Woods Drive
Ridgefield, WA 98642
$729,000
Residential
5 Beds
2.50 Baths
2896 SqFt
Active
WECOME HOME to HIGHLY DESIRABLE RIDGEFIELD and a FABULOUS FLOORPLAN. This open-concept with High Ceilings. Featuring a Chef's Kitchen which is a true entertaining centerpiece, boasting a massive social island, 5-burner gas range, wall oven, and a generous walk-in pantry. Enjoy a wall of built-ins in the Great Room. There is flexible main-floor bedroom/office - PERFECT FOR HOME OFFICE. The Primary Suite offers a spa-like soaking bath and massive walk-in closet. Also upstairs are 3 more Bedrooms including one that is pre-wired for media and spacious laundry. Outside, the fully fenced, low-maintenance yard shines with artificial turf, a covered deck, and brick patio. 3-car garage, tankless hot water, and plantation shutters. Minutes to Old Downtown Shops, Dining, and the riverfront and Wildlife Refuge! TREMENDOUS VALUE on this DELIGHTFUL HOME offering room for Everyone and Entertaining! IT'S ALL HERE!!
Watch Virtual Tour #1Property Features
Community: Ridgefield
2 Story
Deck
Fenced-Fully
Patio
Exterior: Cement Planked
Exterior: Stone
Roof: Composition
Parking: Attached Garage
Year Built: 2017
HOA Dues: $392
2025 Taxes: $5690.00
Buyer Broker Comp.: 2.5%
Listing #: 2489357
Lot Details
Lot Size: 0.18 acres
Lot Dimensions: 7,986 sf rectangle
Corner Lot
Paved
Sidewalk
Appliances That Stay
Dishwasher(s)
Disposal
Dryer(s)
Microwave(s)
Refrigerator(s)
Stove(s)/Range(s)
Washer(s)
Interior
Bath Off Primary
Dining Room
Walk-In Pantry
Water Heater
Dbl Pane/Storm Window
Cooling: Central A/C
Heating: Forced Air
Electric
Natural Gas
Schools
District: Ridgefield
Elem: South Ridge Elem
Middle: View Ridge Mid
High: Ridgefield High
Call or Email:
Grace Wamwere
What's Near 4407 N Ridgefield Woods Drive Ridgefield, WA 98642?

Information is based on data available to the associate, including county records. The information has not been verified by the associate and all information presented should be verified by the buyer. Listings are provided by Northwest Multiple Listing Service as distributed by MLS GRID. The associate represented on this web site is not a multiple listing service but is a member of a local MLS.
DMCA Notice