
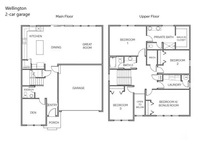
2 Car Garage Wellington plan. Colors and options may vary.

The Wellington offers 2,270 sq. ft. with den & 4 bedrooms. Photos are for representational purposes only. Colors and finishes may vary.

As you enter the front door, we have a private den/ home office and 1/2 bathroom away from the kitchen and family room. Photos are for representational purposes only. Colors and finishes may vary.

1/2 bath located next to den/ home office. Photos are for representational purposes only. Colors and finishes may vary.

Powder bathroom. Photos are for representational purposes only. Colors and finishes may vary.

Extended laminate flooring thru entry, family room and kitchen. Low maintenance. Photos are for representational purposes only. Colors and finishes may vary.

Open great room concept next to your kitchen. Photos are for representational purposes only. Colors and finishes may vary.

The Wellington has a breakfast bar and dining area. Photos are for representational purposes only. Colors and finishes may vary.

This home will have WHITE cabinets thru out. Photos are for representational purposes only. Colors and finishes may vary.

White cabinets will be included in the actual home. Photos are for representational purposes only. Colors and finishes may vary.

The entryway has a 2-story vault ceiling with window to bring in tons of light. Photos are for representational purposes only. Colors and finishes may vary.

1 of 4 generous secondary bedrooms. Photos are for representational purposes only. Colors and finishes may vary.

Oversized primary suite with sitting area. Photos are for representational purposes only. Colors and finishes may vary.

Primary suite is located on the backside of the home. Photos are for representational purposes only. Colors and finishes may vary.

Solid surface quartz countertops with undermount sinks in the primary bath. Photos are for representational purposes only. Colors and finishes may vary.

Bath off the primary suite. Photos are for representational purposes only. Colors and finishes may vary.

Primary suite walk in closet. Photos are for representational purposes only. Colors and finishes may vary.

Laundry room conveniently located upstairs near bedrooms and bath! Photos are for representational purposes only. Colors and finishes may vary.

Photos are for representational purposes only. Colors and finishes may vary.

Large 4th bedroom or bonus room. Photos are for representational purposes only. Colors and finishes may vary.

This flexible room can be a bedroom or bonus room. Photos are for representational purposes only. Colors and finishes may vary.

Generous secondary bedroom. Photos are for representational purposes only. Colors and finishes may vary.

Photos are for representational purposes only. Colors and finishes may vary.

Bakerview has 3 community parks.

Bakerview community park.

Community Park with covered picnic area.

Bakerview has play area, covered picnic shelters, sport court and pickleball!

Welcome to Bakerview.

Covered picnic shelter.

Wellington Marketing FloorPlan