
You have arrived...Sunrise at Edmonds!

Step on in... enter here or through the garage

as you enter...welcome home!

Living room to dining room virtually staged

You are invited...Welcome Home!

Snack bar between kitchen and dining area

Kitchen

guest bath on main floor

Living room w/fireplace to dining room

Living dining area

Living room with sliders to deck

Living room w/wood fireplace

deck off living area

Deck w/covered area

New Hot water heater 02/26

Virtually staged Bedroom #1

Bedroom 1

Full bath

Virtually staged Bedroom #2

bedr 1

hallway area with laundry

Virtually staged.. great office space or storage, use your imagination!

whatever you wish...Here you have some great space, hobby room, office? exercise room?

Fresh and clean, drive right into your garage and you are home!

Parking spot #2 or B

Guest parking

Here you are!

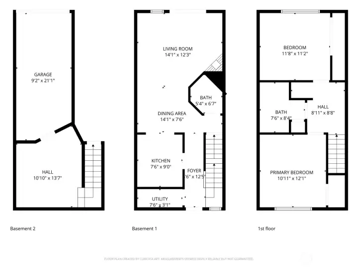
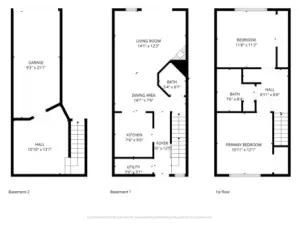
Floor plan of all 3 floors

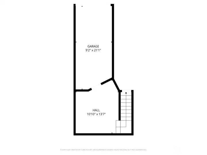
Garage and storage area

Main floor

Upper floor

Upper floor