571 N Forrest Street Westport, WA 98595
571 N Forrest Street
Westport, WA 98595
$400,000
Residential
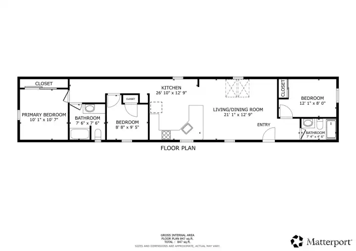
3 Beds
2.00 Baths
2076 SqFt
Active
Rare investment opportunity in the heart of Westport! This unique offering includes four parcels totaling an expansive footprint with flexible development potential. Two parcels are vacant and ready for your vision. One parcel features a turnkey, livable 3-bedroom, 2-bath single-wide home offering 924 sq ft of comfortable living space — ideal for immediate occupancy or rental income. The fourth parcel includes an existing manufactured home structure ready to be cleared or renovated, with sewer, power, and water already on site — creating a valuable head start for future build or placement. With utilities established and multiple build-ready sites, this property offers incredible versatility: generate income while you develop, create a multi-home coastal compound, explore new construction opportunities, or hold as a long-term investment in a growing seaside market. Located just minutes from the marina, sandy beaches, miles of oceanfront trails, and the iconic Grays Harbor Lighthouse — plus the proposed Westport Golf Links — this vibrant fishing community continues to gain momentum. Option to purchase two of the four parcels separately — see MLS 2488941 for details. Mortgage savings may be available for buyers of this listing.
Watch Virtual Tour #1Property Features
Community: Westport
Manuf-Single Wide
Exterior: Wood Products
Roof: Composition
Parking: Driveway
Year Built: 1994
2025 Taxes: $3597.00
Buyer Broker Comp.: 2.5%
Listing #: 2488946
Lot Details
Lot Size: 0.52 acres
Corner Lot
Paved
Appliances That Stay
Dishwasher
Refrigerator
Interior
Skylight(s)
Vaulted Ceiling(s)
Water Heater
Dbl Pane/Storm Window
Cooling: None
Heating: Forced Air
Electric
Open Houses
Mar 14: 11:00 AM - 1:00 PM
Mar 15: 11:00 AM - 1:00 PM
Schools
District: Ocosta
Elem: Buyer To Verify
Middle: Buyer To Verify
High: Buyer To Verify
Call or Email:
Grace Wamwere
What's Near 571 N Forrest Street Westport, WA 98595?

Information is based on data available to the associate, including county records. The information has not been verified by the associate and all information presented should be verified by the buyer. Listings are provided by Northwest Multiple Listing Service as distributed by MLS GRID. The associate represented on this web site is not a multiple listing service but is a member of a local MLS.
DMCA Notice