10601 192nd St Court E Graham, WA 98338

Living room features new carpet installed in 2026 and new interior paint.

Kitchen features refinished oak cabinets, brand new quartz countertops, stainless steel appliances, refinished hardwood floors, and a small eating nook.

Formal dinning area leads to the large deck making this great for entertaining guests.

Extensive deck.

Primary bedroom.

Primary bathroom includes a double vanity and a walk-in shower.

Second bedroom has a peek-a-boo view of Mt. Rainier.

Third bedroom.

Full bathroom features a new vanity, flooring and finishes.

Bonus family room can be used as a second gathering place to watch sports games, a workout room, craft room, or an office.

Powder bathroom.

Washer and dryer are included.

A look at the large, mostly flat back yard.

Enjoy summer evening bonfires with guests!

View from the back patio.

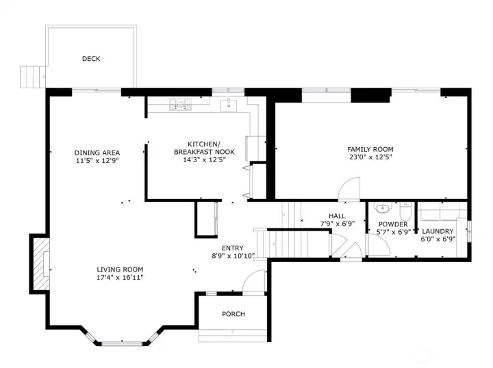
Sizes and dimensions are approximate. Actual may vary.

Sizes and dimensions are approximate. Actual may vary.
10601 192nd St Court E
Graham, WA 98338
$595,000
Residential
3 Beds
2.25 Baths
1984 SqFt
Active
Located at the end of a cul-de-sac in the English Woods community, this move-in ready home offers a functional layout and numerous recent updates. The main level features a living room that flows through the dining area into the kitchen and out to the back deck, creating a connected layout for everyday living and gatherings. A lower-level family room provides additional space for entertainment, recreation, or a home office. Interior updates completed in 2026 include refinished hardwood floors, new carpet, fresh interior paint, refinished kitchen cabinets, quartz countertops, an updated bathroom, and a new sliding glass door leading to the backyard and deck. Additional improvements in recent years include a roof replaced in 2020, solar panels installed in 2021, crawlspace improvements in 2021, LifeProof vinyl plank flooring installed throughout the lower level in 2020, gutters with a leaf filter system installed in 2022, and a gas fireplace insert added in 2024. Outdoor features include a deck built in 2024 overlooking the large fully fenced backyard, outbuildings, a fire pit and space for outdoor activities, gardening, or entertaining. Conveniently located near local amenities, such as, Top Gun Bar & Grill, shopping and dining at South Hill Mall and Sunrise Village, and outdoor recreation at Frontier Park and Spanaway Lake Park.
Watch Virtual Tour #1Property Features
Community: Graham
Tri-Level
Cable TV
Deck
Fenced-Fully
Outbuildings
Patio
Exterior: Metal/Vinyl
Exterior: Wood
Roof: Composition
Parking: Attached Garage
Year Built: 1992
HOA Dues: $525
2026 Taxes: $5582.00
Buyer Broker Comp.: 2.5%
Listing #: 2488449
Lot Details
Lot Size: 0.36 acres
Cul-De-Sac
Dead End Street
Paved
Sidewalk
Appliances That Stay
Dishwasher
Disposal
Dryer
Microwave
Refrigerator
Stove(s)/Range(s)
Washer
Interior
Bath Off Primary
Fireplace
Security System
Skylight(s)
Walk-In Closet(s)
Water Heater
Dbl Pane/Storm Window
Cooling: None
Heating: Forced Air
Natural Gas
Fireplaces: 1
Open Houses
Apr 18: 11:00 AM - 1:00 PM
Apr 19: 1:00 PM - 4:00 PM
Schools
District: Bethel
Elem: Nelson Elem
Middle: Frontier Jnr High
High: Graham-Kapowsin High
Call or Email:
Grace Wamwere
What's Near 10601 192nd St Court E Graham, WA 98338?

Information is based on data available to the associate, including county records. The information has not been verified by the associate and all information presented should be verified by the buyer. Listings are provided by Northwest Multiple Listing Service as distributed by MLS GRID. The associate represented on this web site is not a multiple listing service but is a member of a local MLS.
DMCA Notice