
Custom built home. Don't dare to compare with spec builders with zero yard and lame upgrades

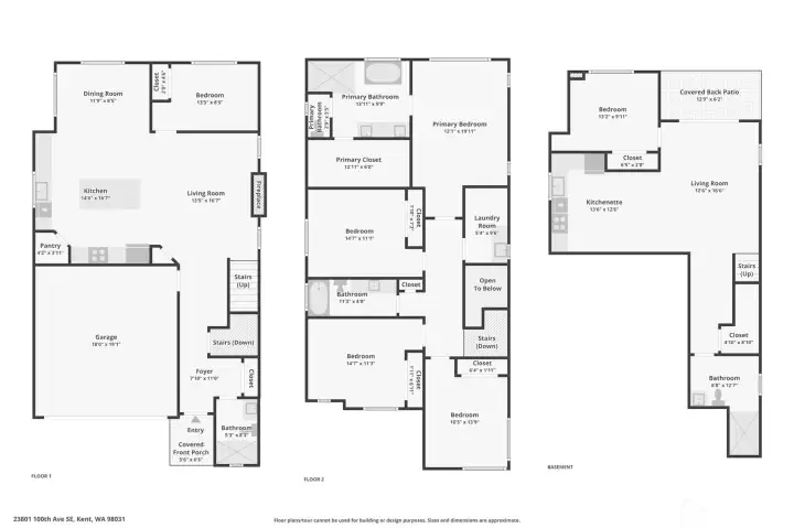
Approximate floorplan of home

Entry. To right here is full bathroom on main floor

Living room with cozy fireplace

Good size Living room with multiple windows and metal stair case railing to 2nd level

View from Living room to Kitchen with Huge Island and dedicated Dining space

Abundant natural light with lot of windows

Custom cabinets with designer cabinets and showcase cabinets on top

You can seat up to 5 people on island

Main floor bedroom/office room/idea room

Notice the hardwood floors extend to this bedroom on main floor too

Main floor bathroom with tile surrounding all the way to the 9 ft ceiling

Lots of windows to bring natural light. Hardwood floors were brought all the way to the bedrooms

Primary bedroom with individual heating/cooling tucked in ceiling

Primary bedroom leading to primary bathroom

Primary Bathroom with tile floors and quartz countertops complementing designer cabinets

Yes this is primary bathroom with glass enclosure and tiled walls to the ceiling

Free standing tub to relax with full privacy

Closet is big enough to go shopping every weekend

Second bedroom is extra big for comfort

Third bedroom also good size with individual heating/cooling

Fourth bedroom

Another angle of fourth bedroom with multiple windows

Laudry Room with built sink and built in shelf to fold. Added cabinets for extra storage

Second bathroom is no less than any other bathroom

Back to main lobby with designer front door to bring in natural light

Yes this is basement but it's daylight so it feels like main floor

Basement Living room

You decide whether you want to rent, make movie room, game room or anything else you want to make out of this basement

Yes you can play ping pong and cook at same time

Basement bedroom is also good size

Basement bathroom

Covered deck to enjoy those light rainy days

Backyard is good size

Aerial view to show the home

There is another newer home next door and to left property will be developed in future by homeowners

You can see whole Kent East Hill market on top of picture

Another view from backyard

Check out the amount of parking and more additional parking in front of of home on street