23825 15th Avenue SE #93 Bothell, WA 98021
23825 15th Avenue SE #93
Bothell, WA 98021
$270,000
Manufactured Home
2 Beds
2.00 Baths
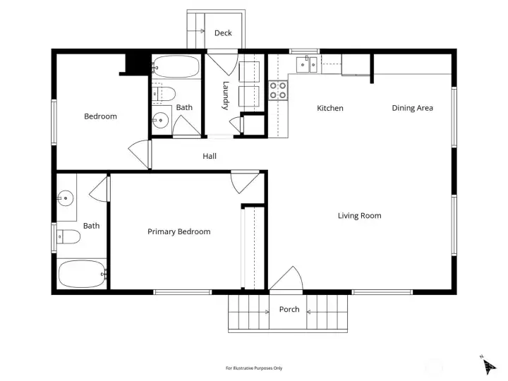
960 SqFt
Active
Welcome home to Green Acres, a highly desirable 55+ community. This charming 2 bed, 2 bath manufactured home offers 960 sq. ft. of comfortable living with vaulted ceilings & an open layout filled with natural light. The kitchen features generous cabinet space, island & built-in hutch in the dining area. Updated baths, newer carpet, and a heat pump ensure year-round comfort. Enjoy a large, private fenced backyard with covered patio, garden space, and multiple sheds for storage. Double carport plus guest parking nearby. Community amenities include clubhouse, walking trails, lakes, dog park, and daily activities. Convenient Canyon Park location with easy access to I-405, shopping, dining, and medical. A wonderful home in a welcoming community! Photos contain virtual staging.
Watch Virtual Tour #1Property Features
Community: Bothell
Manuf-Double Wide
View: Territorial
Unit Can Stay: Yes
Age Restriction: Yes
Bus Line Nearby: Yes
Exterior: Wood Products
Roof: Composition
Parking: Carport
Year Built: 1993
2025 Taxes: $1317.23
Buyer Broker Comp.: 3%
Listing #: 2486960
Lot Details
Lot Size: 0.03 acres
Paved
Sidewalk
Units in Park: 317
Appliances That Stay
Dishwasher
Dryer
Refrigerator
Stove(s)/Range(s)
Washer
Interior
Awnings
Bath Off Primary
Ceiling Fan(s)
Double Pane Windows
Landscaped
Patio/Porch/Deck
Vaulted Ceilings
Cooling:
Heating: Forced Air
Electric
Schools
District: Northshore
Elem: Shelton View Elem
Middle: Canyon Park Middle School
High: Bothell Hs
Call or Email:
Grace Wamwere
What's Near 23825 15th Avenue SE #93 Bothell, WA 98021?

Information is based on data available to the associate, including county records. The information has not been verified by the associate and all information presented should be verified by the buyer. Listings are provided by Northwest Multiple Listing Service as distributed by MLS GRID. The associate represented on this web site is not a multiple listing service but is a member of a local MLS.
DMCA Notice