225 106th Street SW #A3 Everett, WA 98204
225 106th Street SW #A3
Everett, WA 98204
$549,000
Residential
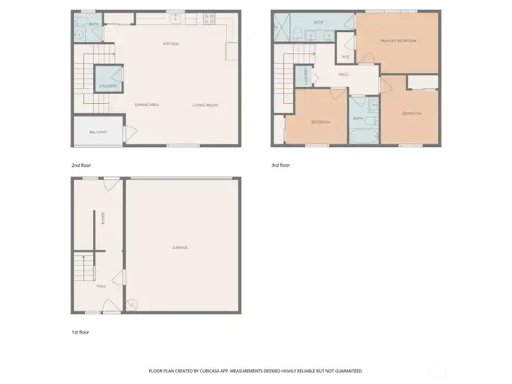
3 Beds
2.25 Baths
1485 SqFt
Active
Welcome to 105th St Townhomes where affordability meets comfort and low maintenance living in New Construction. Located with easy access to freeway & shopping, this new 3 bedroom, Plus Office offers comfortable open concept living perfect for entertaining or relaxation. The designer kitchen has stainless appliances, including the fridge and microwave, plenty of prep space, quartz counters & ample cabinet space. The spacious primary bedroom has vaulted ceilings & walk in closet. You will love the convenience of the spa like primary bathroom with dual vanity, and floor to ceiling tiled shower. The property is partially fenced and landscaped. You will appreciate the oversized 2 car garage.
Property Features
Community: South Everett
Townhouse
Deck
Fenced-Partially
New Construction: Yes
Exterior: Wood Products
Roof: Composition
Parking: Attached Garage
Year Built: 2026
HOA Dues: $95
2026 Taxes: $1960.00
Buyer Broker Comp.: 2.5%
Listing #: 2486173
Lot Details
Lot Size: 0.03 acres
Paved
Appliances That Stay
Dishwasher(s)
Microwave(s)
Refrigerator(s)
Stove(s)/Range(s)
Interior
High Tech Cabling
Sprinkler System
Dbl Pane/Storm Window
Vaulted Ceilings
Cooling: Ductless HP-Mini Split
Heating: Ductless HP-Mini Split
Electric
Schools
District: Mukilteo
Call or Email:
Grace Wamwere
What's Near 225 106th Street SW #A3 Everett, WA 98204?

Information is based on data available to the associate, including county records. The information has not been verified by the associate and all information presented should be verified by the buyer. Listings are provided by Northwest Multiple Listing Service as distributed by MLS GRID. The associate represented on this web site is not a multiple listing service but is a member of a local MLS.
DMCA Notice