1626 25th Avenue Seattle, WA 98122
1626 25th Avenue
Seattle, WA 98122
$915,000
Residential
2 Beds
1.75 Baths
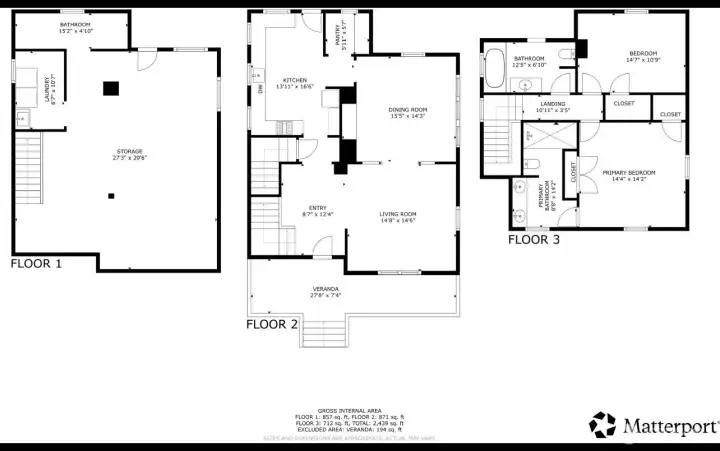
2490 SqFt
Active
Experience the perfect fusion of 1905 heritage and high-tech infrastructure in this updated home. Poised on an expansive 7,000 sq. ft. lot on a quiet street with territorial views, this property offers rare redevelopment potential and ample space for a high-value DADU. The interior radiates character with a built-in china hutch, original wood trim, and elegant picture rail molding. The brand-new kitchen is a chef’s dream, featuring stainless steel appliances, a gas range with a convection oven, and an electric wall oven/microwave combo. Luxury touches include cherry cabinets, a butler's pantry with a wine fridge, and hands-free fixtures. Energy-efficient Milgard windows are installed throughout, featuring wood interior sashes. For those looking to build instant equity, the unfinished basement is already framed for a bathroom and laundry, offering a blank canvas to increase square footage. No expense was spared on vital systems: enjoy a new HVAC system with a gas heat pump and central AC, 2018 electrical wiring/panel, and a 50-amp junction box ready for EV charging. This smart home is pre-wired for speakers, security cameras, and Cat 6 Ethernet. With a lined sewer, new PEX water lines, and a sprawling backyard with a new drainage system, this home offers unmatched peace of mind and strategic upside in the heart of Seattle.
Watch Virtual Tour #1Property Features
Community: Madison Valley
2 Stories w/Bsmnt
View: Territorial
Cable TV
Deck
Electric Car Charging
Fenced-Fully
Gas Available
High Speed Internet
Bus Line Nearby: Yes
Exterior: Metal/Vinyl
Roof: Metal
Parking: Detached Carport
Year Built: 1905
2026 Taxes: $11084.39
Buyer Broker Comp.: 2.5%%
Listing #: 2486028
Lot Details
Lot Size: 0.17 acres
Alley
Paved
Sidewalk
Appliances That Stay
Dishwasher(s)
Disposal
Double Oven
Dryer(s)
Microwave(s)
Refrigerator(s)
Stove(s)/Range(s)
Washer(s)
Tankless Water Heater
Interior
Bath Off Primary
Dining Room
High Tech Cabling
SMART Wired
Security System
Walk-In Closet(s)
Water Heater
Dbl Pane/Storm Window
Cooling: Central A/C, Forced Air
Heating: Heat Pump, Forced Air
Electric
Natural Gas
Open Houses
Mar 7: 11:00 AM - 1:00 PM
Mar 8: 11:00 AM - 1:00 PM
Call or Email:
Grace Wamwere
What's Near 1626 25th Avenue Seattle, WA 98122?

Information is based on data available to the associate, including county records. The information has not been verified by the associate and all information presented should be verified by the buyer. Listings are provided by Northwest Multiple Listing Service as distributed by MLS GRID. The associate represented on this web site is not a multiple listing service but is a member of a local MLS.
DMCA Notice