11325 178th Avenue Ct E Bonney Lake, WA 98391
11325 178th Avenue Ct E
Bonney Lake, WA 98391
$749,400
Residential
5 Beds
2.50 Baths
2913 SqFt
Pending
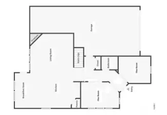
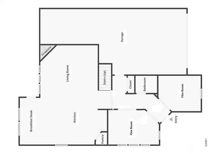
Spacious, versatile, and beautifully refreshed, this 5 bedroom + 2 flex room home with a rare 3 car garage stands out in the desirable Ashton Woods neighborhood of Bonney Lake. Offering 2,913 sq ft and 2.5 baths, this move-in ready home provides the space and flexibility today’s buyers are looking for. The functional layout features real hardwood floors, an open concept living area, formal dining space, and a well-appointed kitchen with double oven, stainless steel appliances, and abundant cabinetry for exceptional storage. The kitchen nook and flexible floor plan make everyday living and entertaining effortless. With five true bedrooms plus two dedicated flex rooms, this home offers seven separate rooms to grow, host, or comfortably work from home. The spacious primary suite includes dual vanities, soaking tub, and walk-in closet. Recent updates include brand new carpet, fresh interior and exterior paint, new garage door (installed 3/5/26), and newer water heater, allowing the next owner to move in with confidence. Enjoy a fully fenced backyard with stamped concrete patio and covered outdoor space ideal for entertaining or relaxing year-round. Surrounded by neighborhood amenities including a dog park, multiple playgrounds, and basketball court, this home combines everyday comfort with convenient recreation. Well maintained, thoughtfully updated, and offering exceptional versatility, this Ashton Woods home is ready for its next chapter
Property Features
Community: Bonney Lake
2 Story
Cable TV
Fenced-Fully
High Speed Internet
Patio
Sprinkler System
Exterior: See Remarks
Roof: Composition
Parking: Attached Garage
Year Built: 2006
HOA Dues: $41
2025 Taxes: $6940.00
Buyer Broker Comp.: 2%
Listing #: 2485021
Lot Details
Lot Size: 0.12 acres
Curbs
Paved
Sidewalk
Appliances That Stay
Dishwasher
Disposal
Double Oven
Microwave
Stove(s)/Range(s)
Interior
Bath Off Primary
Built-In Vacuum
Ceiling Fan(s)
Dining Room
Fireplace (Primary Bedroom)
French Doors
Pantry
Security System
Walk-In Closet(s)
Cooling: Forced Air
Heating: Forced Air
Natural Gas
Schools
District: Sumner-Bonney Lake
Elem: Victor Falls Elem
Middle: Mtn View Middle
High: Bonney Lake High
Call or Email:
Grace Wamwere
What's Near 11325 178th Avenue Ct E Bonney Lake, WA 98391?

Information is based on data available to the associate, including county records. The information has not been verified by the associate and all information presented should be verified by the buyer. Listings are provided by Northwest Multiple Listing Service as distributed by MLS GRID. The associate represented on this web site is not a multiple listing service but is a member of a local MLS.
DMCA Notice