23712 13th Place S #1006 Des Moines, WA 98198

Corner unit

Ground floor unit

Entry

Wood burning fireplace

Main floor half bath

Master Bedroom

Master

Vanity sink in Master

Upstairs full bath

Bedroom 2

Bedroom 3

Private back porch

Dead end road

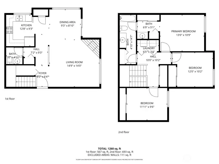
Main Floor

2nd Floor

Enjoy those summer days!

Community pool

Community pool/club house
23712 13th Place S #1006
Des Moines, WA 98198
$395,000
Condominium
3 Beds
1.50 Baths
1262 SqFt
Active
Tucked into a quiet, well-maintained community, this beautifully updated corner-unit condo offers comfort, space and an unbeatable location. This spacious 2-story home offers 1,262 sq ft with 3 generous size bedrooms and 1.5 baths, providing comfortable living with room to spread out. The inviting living area features a cozy wood-burning fireplace for those chilly days and abundant natural light. The updated interior creates a fresh, modern feel throughout. Enjoy outdoor relaxation on your private back porch, perfectly positioned on a dead-end road for added peace and privacy. The home also includes two designated parking spaces for your convenience. Residents enjoy access to fantastic amenities including a community pool, clubhouse, exercise room, and park. Just minutes from Highline Community College, the waterfront at Des Moines Marina, scenic trails and beach at Saltwater State Park, as well as quick access to I5 and 167. A wonderful opportunity to own a move-in ready home at an affordable price! Come tour your new home today!
Watch Virtual Tour #1Property Features
Community: Highline
Condo (2 Levels)
Floor: 1
View: Territorial
Bus Line Nearby: Yes
Leased: No
Exterior: Wood
Roof: Composition
Parking: Carport
Parking: Uncovered
Year Built: 1982
HOA Dues: $547
2025 Taxes: $4686.00
Buyer Broker Comp.: 2.5%
Listing #: 2484934
Lot Details
Corner Lot
Curbs
Dead End Street
Paved
Sidewalk
Appliances That Stay
Dishwasher
Disposal
Dryer
Refrigerator
Stove(s)/Range(s)
Washer
Interior
Cooking-Electric
Dryer-Electric
Fireplace
Washer
Water Heater
Primary Bathroom
Ground Floor
End Unit
Balcony/Deck/Patio
End Unit
Ground Floor
Primary Bath
Yard
Cooling: None
Heating: Baseboard, Wall Furnace
Electric
Fireplaces: 1
Common Features
Exercise Room
Game/Rec Rm
Hot Tub
Outside Entry
Playground
Pool-Outdoor
Clubhouse
Schools
District: Highline
Elem: Des Moines Elem
Middle: Pacific Mid
High: Mount Rainier High
Call or Email:
Grace Wamwere
What's Near 23712 13th Place S #1006 Des Moines, WA 98198?

Information is based on data available to the associate, including county records. The information has not been verified by the associate and all information presented should be verified by the buyer. Listings are provided by Northwest Multiple Listing Service as distributed by MLS GRID. The associate represented on this web site is not a multiple listing service but is a member of a local MLS.
DMCA Notice