4203 SW Raymond Street Seattle, WA 98136
4203 SW Raymond Street
Seattle, WA 98136
$789,900
Residential
3 Beds
2.25 Baths
1520 SqFt
Active
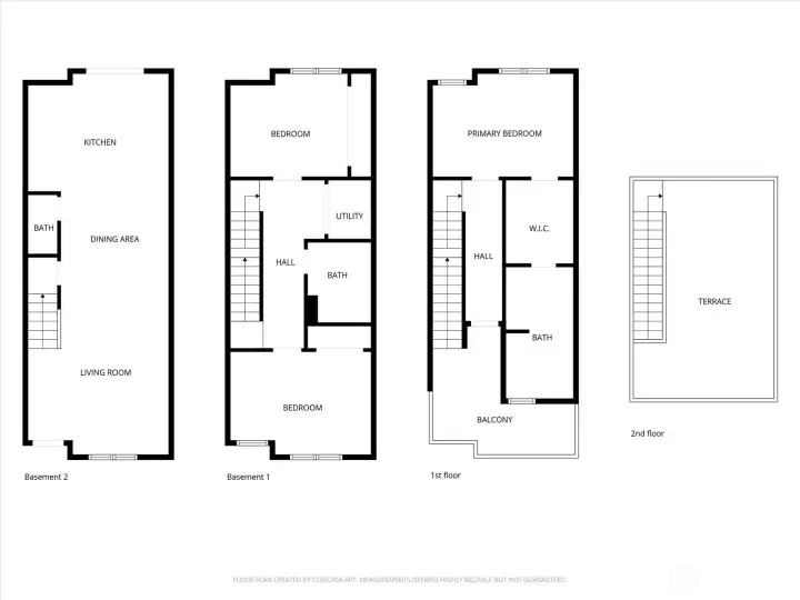
Centrally located in West Seattle, this 4-Star Built Green-certified rowhouse pairs modern efficiency with a flexible floor plan and three outdoor living spaces. The open-concept main level features quartz countertops, a spacious island, defined living and dining areas, and a convenient powder room—ideal for everyday living and entertaining. The second floor offers two comfortable bedrooms, a full bath, and a large dedicated laundry room. The top floor hosts a private primary suite with a vaulted ceiling, a walk-through closet, and a third bathroom with a stunning tiled walk-in shower. Ductless mini-splits support efficient cooling, and a solar-ready roof offers future energy upgrades. Separate outdoor spaces extend the living area year-round: a ground-level patio off the kitchen for summer BBQs, a covered upper patio for rainy morning coffee, and a rooftop deck with sweeping views of the Puget Sound and Olympic Mountains. Positioned on a corner lot that overlooks a residential neighborhood, with dedicated parking off a quiet alley. Just minutes to Lincoln Park and Lowman Beach, the Junction, and local restaurants, plus easy transit to downtown Seattle. No HOA dues.
Watch Virtual Tour #1Property Features
Community: Seaview
Townhouse
View: Mountain(s)
View: Partial
View: Sound
View: Territorial
Cable TV
Deck
Fenced-Fully
High Speed Internet
Patio
Rooftop Deck
Bus Line Nearby: Yes
Exterior: Cement Planked
Exterior: Wood
Roof: Flat
Parking: Off Street
Year Built: 2024
2026 Taxes: $7105.00
Buyer Broker Comp.: 2.5%
Listing #: 2484795
Lot Details
Lot Size: 0.02 acres
Alley
Corner Lot
Paved
Sidewalk
Appliances That Stay
Dishwasher(s)
Dryer(s)
Microwave(s)
Refrigerator(s)
Stove(s)/Range(s)
Washer(s)
Interior
Bath Off Primary
Dining Room
High Tech Cabling
Sprinkler System
Walk-In Closet(s)
Water Heater
Dbl Pane/Storm Window
Vaulted Ceilings
Cooling: Ductless HP-Mini Split
Heating: Ductless HP-Mini Split, 90%+ High Efficiency, Wall Unit(s)
Electric
Enviromental Certs
Built Green™
Open Houses
Mar 1: 11:00 AM - 2:00 PM
Schools
District: Seattle
Elem: Gatewood
Middle: Madison Mid
High: West Seattle High
Call or Email:
Grace Wamwere
What's Near 4203 SW Raymond Street Seattle, WA 98136?

Information is based on data available to the associate, including county records. The information has not been verified by the associate and all information presented should be verified by the buyer. Listings are provided by Northwest Multiple Listing Service as distributed by MLS GRID. The associate represented on this web site is not a multiple listing service but is a member of a local MLS.
DMCA Notice