390 Ledgewood Beach Road Coupeville, WA 98239
390 Ledgewood Beach Road
Coupeville, WA 98239
$415,000
Residential
2 Beds
1.75 Baths
1306 SqFt
Active
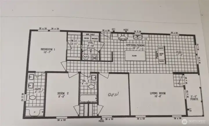
Welcome home to Bon Air, a beloved waterfront community with an outdoor and heated community pool, clubhouse, playground & a park area only 2 blocks away. There's also a private beach which provides great access to launch your kayak or just relax with some quiet beach combing. This brand new NRG Star rated home offers great privacy and is constructed to modern sound and energy standards and features 2 bedrooms and 2 baths. It offers a thoughtful, light, bright & open floorplan featuring a large open kitchen with a huge center island and breakfast bar, perfect for meal prep and entertaining. The adjacent flex room is perfect as a dining room or a cozy family room. There's tons of kitchen storage, adjustable shelves, stainless appliances, cubby for another freezer and adjacent laundry room. The spacious primary bedroom suite has a walk-in closet, double sink vanity& large walk-in shower in the ensuite primary bath. The 2nd flex room provides a great home office opportunity or potential room for overnight guests. Ecobee smart thermostat, recessed LED lighting, 30 year roof and full window blinds are all included in this affordable & low maintenance new home! Downtown Coupeville's restaurants & shopping are minutes away and this mid-island home offers great commute options. One year factory warranty included!
Property Features
Community: Bon Air
Manuf-Double Wide
View: Territorial
Cable TV
Deck
Fenced-Partially
High Speed Internet
New Construction: Yes
Pool: Community
Bus Line Nearby: Yes
Leased: N/A
Exterior: Wood Products
Roof: Composition
Parking: Driveway
Year Built: 2026
HOA Dues: $160
2026 Taxes: $356.00
Buyer Broker Comp.: 2.5%
Listing #: 2484609
Lot Details
Lot Size: 0.17 acres
Lot Dimensions: 62.5 x 120
Paved
Appliances That Stay
Dishwasher(s)
Refrigerator(s)
Stove(s)/Range(s)
Interior
Bath Off Primary
Dining Room
Walk-In Closet(s)
Water Heater
Dbl Pane/Storm Window
Cooling: Forced Air
Heating: Forced Air
Electric
Enviromental Certs
Northwest ENERGY STARĀ®
Community Features
CCRs
Club House
Park
Playground
Schools
District: Coupeville
Elem: Buyer To Verify
Middle: Buyer To Verify
High: Buyer To Verify
Call or Email:
Grace Wamwere
What's Near 390 Ledgewood Beach Road Coupeville, WA 98239?

Information is based on data available to the associate, including county records. The information has not been verified by the associate and all information presented should be verified by the buyer. Listings are provided by Northwest Multiple Listing Service as distributed by MLS GRID. The associate represented on this web site is not a multiple listing service but is a member of a local MLS.
DMCA Notice