2511 Prospect Avenue NE #13 Olympia, WA 98506
2511 Prospect Avenue NE #13
Olympia, WA 98506
$465,000
Multi-Family
0 Beds
0.00 Baths
0 SqFt
Active
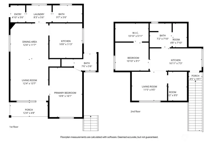
Wise investment. Fair value duplex in an established, desirable NE Olympia neighborhood that is very close to all conveniences and I-5. Responsible, long term tenants who want to stay on. First floor tenant's lease expires in July 2026. Second floor tenant's lease expires at the end of August. Five off the street parking spots. Each unit has its own yard and garden space (tenant maintained) with a fence delineating each portion. Gas furnaces in each unit. Some recent updates. Tile floors + shower, engineered hardwood, not the cheap materials traditionally used in rentals. Updated electric wiring, insulated attic and crawl space, composition roof in good condition. First floor #2513 is the larger unit with large main bedroom and half en suite bath. Also, large living room, kitchen, laundry room, full second bathroom and back door entry into a mud room. Second floor unit is smaller and consists of main bedroom, kitchen, living room and a little reading/meditation nook.
Watch Virtual Tour #1Property Features
Community: Olympia
Duplex
View: City
Cable TV
Fenced-Partially
Gas Available
High Speed Internet
Exterior: Wood
Exterior: Wood Products
Roof: Composition
Year Built: 1901
2026 Taxes: $4950.02
Buyer Broker Comp.: 2.5%
Listing #: 2483632
Lot Details
Lot Size: 0.14 acres
Lot Dimensions: 59x105
Paved
No. of Units: 2
Interior
Cooling: None
Heating: Forced Air
Electric
Natural Gas
Schools
District: Olympia
Elem: Buyer To Verify
Middle: Buyer To Verify
High: Buyer To Verify
Call or Email:
Grace Wamwere
What's Near 2511 Prospect Avenue NE #13 Olympia, WA 98506?

Information is based on data available to the associate, including county records. The information has not been verified by the associate and all information presented should be verified by the buyer. Listings are provided by Northwest Multiple Listing Service as distributed by MLS GRID. The associate represented on this web site is not a multiple listing service but is a member of a local MLS.
DMCA Notice