1018 E Delilah Rose Lane Westport, WA 98595
1018 E Delilah Rose Lane
Westport, WA 98595
$599,000
Residential
2 Beds
2.25 Baths
900 SqFt
Active
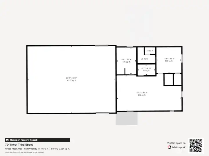
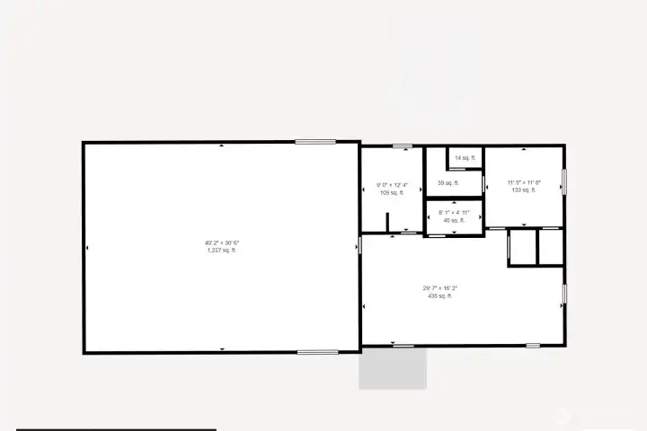
Presale! Pick your colors! Discover the ultimate blend of modern sophistication, functionality, and stunning views in this exceptional 30x70 shop in Westport, WA. Built with 6x8 posts, 19' eaves, and insulated walls, the shop features two 14x14 power-operated doors, a 5-inch concrete slab, 26-gauge metal siding, and smart amenities like WiFi-controlled lighting and heating, Ring cameras, and a 30-amp RV plug. Natural light pours through four high-set windows, while a 4x30 Timber Tech balcony offers breathtaking water and sky views. Above, a 900 sq. ft. smart apartment boasts 2 bedrooms, 2 baths, vaulted ceilings, quartz countertops, tiled master showers, and a spiral staircase connecting to the shop below. An additional full bathroom with its own water heater adds convenience. Outdoor highlights include a 6x10 TimberTech deck with 5' cladded steps, perfect for soaking in the gorgeous coastal scenery. Situated in picturesque Westport, this property offers a rare chance to combine work, play, and serene living. Don't miss out—your dream space. Photos are of like build on a different lot.
Property Features
Community: Westport
2 Story
View: Bay
View: Territorial
Fenced-Partially
Shop
New Construction: Yes
Bus Line Nearby: Yes
Exterior: Metal/Vinyl
Roof: Metal
Parking: Attached Garage
Year Built: 2026
2025 Taxes: $3000.00
Buyer Broker Comp.: 3%
Listing #: 2483526
Lot Details
Lot Size: 0.15 acres
Dead End Street
Paved
Appliances That Stay
Dishwasher
Disposal
Microwave
Stove(s)/Range(s)
Interior
Dbl Pane/Storm Window
Cooling: Ductless HP-Mini Split
Heating: Ductless HP-Mini Split
Electric
Call or Email:
Grace Wamwere
What's Near 1018 E Delilah Rose Lane Westport, WA 98595?

Information is based on data available to the associate, including county records. The information has not been verified by the associate and all information presented should be verified by the buyer. Listings are provided by Northwest Multiple Listing Service as distributed by MLS GRID. The associate represented on this web site is not a multiple listing service but is a member of a local MLS.
DMCA Notice