4168 Brays Way Bellingham, WA 98226
4168 Brays Way
Bellingham, WA 98226
$520,000
Residential
2 Beds
2.25 Baths
1334 SqFt
Pending Inspection
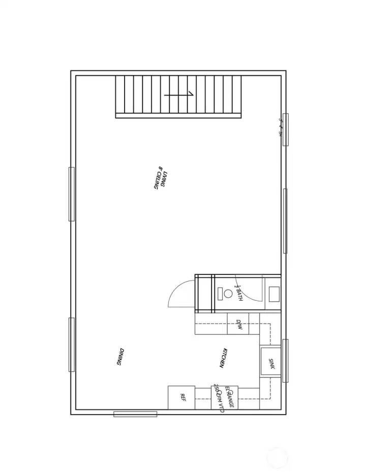
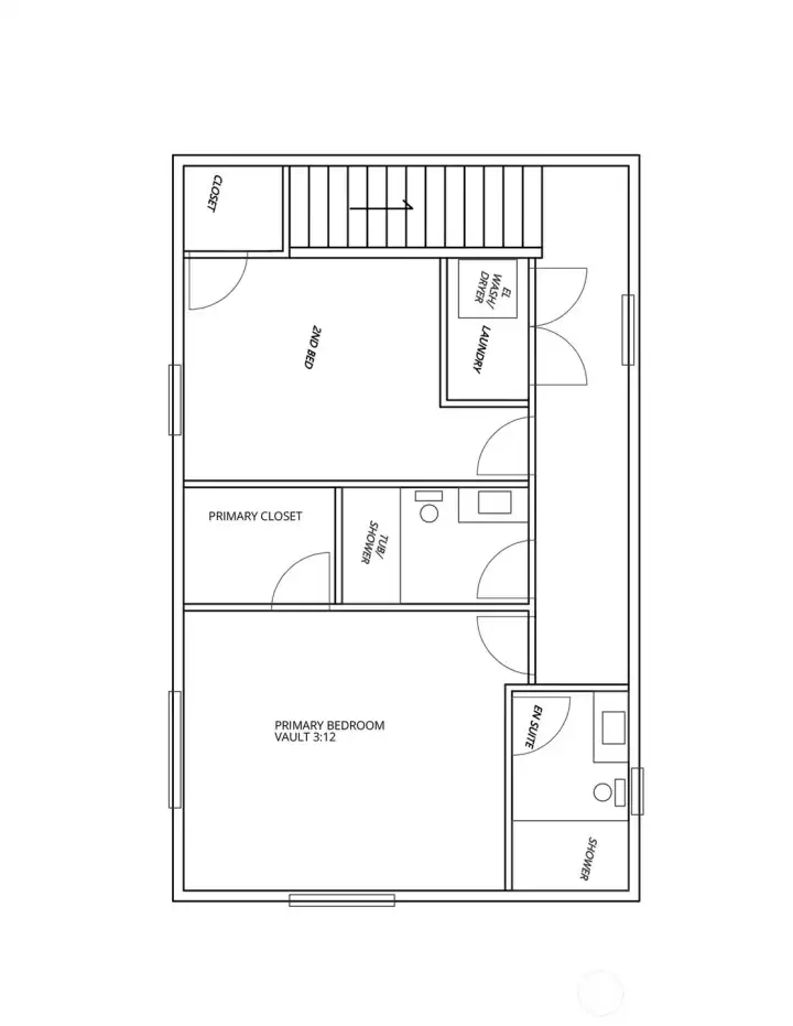
New construction! Estimated completion early April. This brand new 2 bed, 2.5 bath is conveniently located near peaceful Emerald Lake. Enjoy the serenity of nature in this little woodsy oasis that's less than 10 minutes to Barkley Village and life's amenities. The ground floor entrance leads to utility closet and storage space. Continue up the stairs to the second level with bright kitchen and open living space. The leveled outdoor space is accessed through the kitchen's sliding door and is ready for gardening or grilling! The third floor yields sweeping views of Bellingham, both sizable bedrooms, bathrooms and laundry room. You'll be comfortable year-round with the high efficiency heat pump providing heat and AC. The insulation and air tightness have been upgraded for better home temperature efficiency, economic heating bills and noise dampening. The house is a blank canvas waiting for you to make it home!
Property Features
Community: Emerald Lake
View: Territorial
Fenced-Partially
New Construction: Yes
Exterior: Cement Planked
Roof: Composition
Parking: Driveway
Year Built: 2026
2025 Taxes: $107.00
Buyer Broker Comp.: 2.5%%
Listing #: 2483194
Lot Details
Lot Size: 0.21 acres
Appliances That Stay
Dishwasher
Microwave
Refrigerator
Stove(s)/Range(s)
Interior
Bath Off Primary
Dining Room
Vaulted Ceiling(s)
Walk-In Closet(s)
Water Heater
Cooling: Ductless HP-Mini Split, Heat Pump
Heating: Ductless HP-Mini Split, Heat Pump, Baseboard
Electric
Schools
District: Bellingham
Elem: Northern Heights Ele
Middle: Shuksan Mid
High: Squalicum High
Call or Email:
Grace Wamwere
What's Near 4168 Brays Way Bellingham, WA 98226?

Information is based on data available to the associate, including county records. The information has not been verified by the associate and all information presented should be verified by the buyer. Listings are provided by Northwest Multiple Listing Service as distributed by MLS GRID. The associate represented on this web site is not a multiple listing service but is a member of a local MLS.
DMCA Notice