1812 SW 318th Place #28D Federal Way, WA 98023
1812 SW 318th Place #28D
Federal Way, WA 98023
$349,950
Condominium
3 Beds
2.00 Baths
1443 SqFt
Active
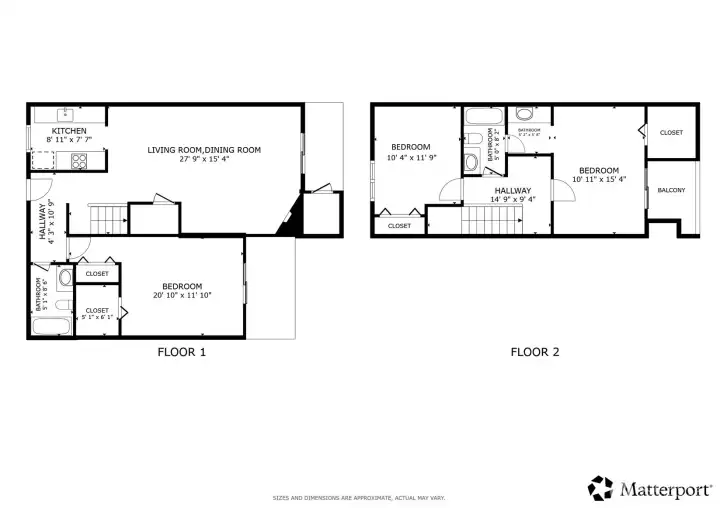
Welcome to the Tall Firs community in Federal Way! This 3 bedroom, 2 full bath, two-story condo offers a functional layout with inviting outdoor spaces. Enjoy ground-level entry into a spacious living room featuring a cozy wood-burning fireplace and sliding door to a covered patio with extra storage—perfect for year-round enjoyment. The kitchen is equipped with stainless steel appliances and ample cabinetry. The main level includes a full bathroom and a bedroom with access to a second patio and yard area, ideal for guests, a home office, or flex space. Upstairs you’ll find two additional bedrooms, including the primary suite with its own balcony retreat. A washer and dryer are conveniently located in the unit. Two reserved carport parking spaces are directly in front of the home. Community amenities include an outdoor pool, clubhouse, and sports courts. Conveniently located just minutes from shopping, dining, parks, and commuter routes, this home combines comfort and convenience in a desirable setting. Mortgage savings may be available for buyers of this listing.
Watch Virtual Tour #1Property Features
Community: Lakota
Condo (2 Levels)
Floor: 1
Exterior: Metal/Vinyl
Roof: Composition
Parking: Carport
Year Built: 1978
HOA Dues: $832
2025 Taxes: $3893.00
Buyer Broker Comp.: 2.5%
Listing #: 2483084
Appliances That Stay
Dishwasher(s)
Disposal
Dryer(s)
Refrigerator(s)
Stove(s)/Range(s)
Washer(s)
Interior
Cooking-Electric
Dryer-Electric
Fireplace
Walk-In Closet(s)
Washer
Water Heater
Ground Floor
End Unit
Balcony/Deck/Patio
End Unit
Ground Floor
Walk-in Closet
Yard
Cooling: None
Heating: Baseboard
Electric
Fireplaces: 1
Common Features
Athletic Court
Pool-Outdoor
Clubhouse
Open Houses
Feb 28: 11:00 AM - 1:00 PM
Mar 8: 11:00 AM - 1:00 PM
Schools
District: Federal Way
Elem: Buyer To Verify
Middle: Buyer To Verify
High: Buyer To Verify
Call or Email:
Grace Wamwere
What's Near 1812 SW 318th Place #28D Federal Way, WA 98023?

Information is based on data available to the associate, including county records. The information has not been verified by the associate and all information presented should be verified by the buyer. Listings are provided by Northwest Multiple Listing Service as distributed by MLS GRID. The associate represented on this web site is not a multiple listing service but is a member of a local MLS.
DMCA Notice