3006 S Tyler Street Tacoma, WA 98409
3006 S Tyler Street
Tacoma, WA 98409
$1,000,000
Residential
4 Beds
1.75 Baths
1770 SqFt
Active
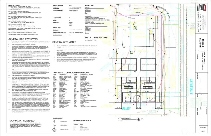
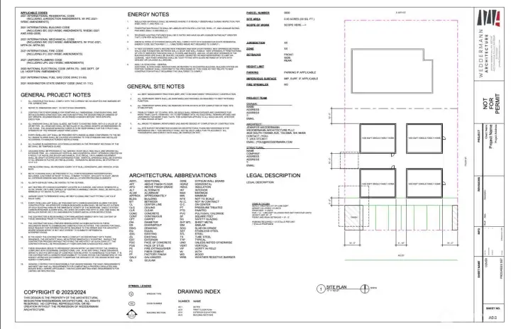
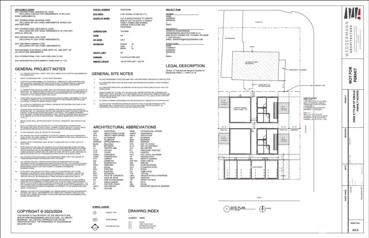
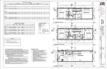
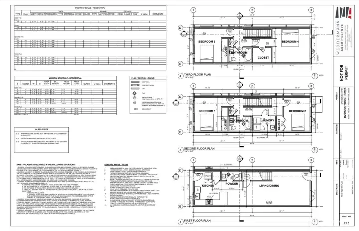
***Be sure to ask about our LENDER-PAID 1-0 BUYDOWN option! Enjoy an INTEREST RATE THAT IS 1% LOWER DURING YOUR FIRST YEAR.*** Short plat approval for Proposed 4-Unit Townhome Development plus an updated 1770 sqft home. Listing contains architectural and site plan documents related to the proposed development of four townhomes. The home is centrally located and has been updated with quartz counter tops, hardwood floors and tile bathrooms with room to put an additional bedroom. This updated home offers immediate rental income and compelling development upside. The property is currently rented at approximately $1,000 per room and features recent upgrades including quartz countertops, updated cabinetry, stainless steel appliances, tile shower/tub surround, LVP flooring, fresh interior paint, and updated trim, making it turnkey for continued rental use or resale. Reach out for more information site plan and development information. great opportunity to condo-minimize all 5 units. Builder resources available price range from $250-$300 a square ft.
Property Features
Community: South Tacoma
2 Story
Fenced-Partially
Bus Line Nearby: Yes
Exterior: Wood
Roof: Composition
Parking: Attached Carport
Year Built: 1915
2025 Taxes: $4353.00
Buyer Broker Comp.: 2%
Listing #: 2482990
Lot Details
Lot Size: 0.24 acres
Appliances That Stay
Dishwasher
Disposal
Microwave
Refrigerator
Stove(s)/Range(s)
Washer
Interior
Ceiling Fan(s)
French Doors
Water Heater
Dbl Pane/Storm Window
Cooling: None
Heating: Baseboard
Electric
Schools
District: Tacoma
Elem: Buyer To Verify
Middle: Buyer To Verify
High: Buyer To Verify
Call or Email:
Grace Wamwere
What's Near 3006 S Tyler Street Tacoma, WA 98409?

Information is based on data available to the associate, including county records. The information has not been verified by the associate and all information presented should be verified by the buyer. Listings are provided by Northwest Multiple Listing Service as distributed by MLS GRID. The associate represented on this web site is not a multiple listing service but is a member of a local MLS.
DMCA Notice