137 23rd Avenue E Seattle, WA 98112
137 23rd Avenue E
Seattle, WA 98112
$1,795,000
Residential
3 Beds
2.00 Baths
1740 SqFt
Active
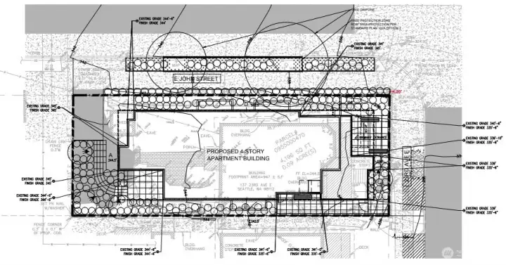
Prime SHOVEL READY development site in Seattle’s vibrant Capitol Hill neighborhood. Permits for a 31 unit Small Efficiency Dwelling Unit (SEDU) apartment building have been APPROVED, PAID for, and INCLUDED with the sale. This project is ready for its new owner to break ground on immediately! There are striking mountain, lake, and territorial views from the second story of the existing home, so a buyer can expect views in all directions from the three upper levels of the proposed building. The property is situated in an ideal Capitol Hill location on a corner lot, steps from Miller Park, very close to Pike/Pine, mass transit, Downtown Seattle, and everything Capitol Hill has to offer. Full plan set and permit available upon request.
Property Features
Community: Capitol Hill
2 Story
View: Bay
View: City
View: Lake
View: Mountain(s)
View: Territorial
Cabana/Gazebo
Cable TV
Deck
Fenced-Fully
High Speed Internet
Outbuildings
Patio
Bus Line Nearby: Yes
Exterior: Wood
Roof: Composition
Parking: Driveway
Year Built: 1900
2025 Taxes: $10227.00
Buyer Broker Comp.: 2.5%
Listing #: 2481610
Lot Details
Lot Size: 0.10 acres
Corner Lot
Curbs
Paved
Sidewalk
Value In Land
Appliances That Stay
Dishwasher(s)
Dryer(s)
Microwave(s)
Refrigerator(s)
Stove(s)/Range(s)
Washer(s)
Interior
Bath Off Primary
Dining Room
Fireplace
French Doors
Water Heater
Dbl Pane/Storm Window
Cooling: None
Heating: Forced Air
Electric
Natural Gas
Fireplaces: 1
Schools
District: Seattle
Elem: Stevens
Middle: Meany Mid
High: Garfield High
Call or Email:
Grace Wamwere
What's Near 137 23rd Avenue E Seattle, WA 98112?

Information is based on data available to the associate, including county records. The information has not been verified by the associate and all information presented should be verified by the buyer. Listings are provided by Northwest Multiple Listing Service as distributed by MLS GRID. The associate represented on this web site is not a multiple listing service but is a member of a local MLS.
DMCA Notice