31600 126th Avenue SE #E29 Auburn, WA 98092
31600 126th Avenue SE #E29
Auburn, WA 98092
$200,000
Manufactured Home
3 Beds
2.00 Baths
1848 SqFt
Active
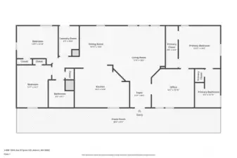
Beautifully cared-for and thoughtfully designed, an ANY AGE community. This spacious home offers nearly 1,900 square feet of comfortable living with three bedrooms and two full bathrooms. Soaring vaulted ceilings and abundant natural light create an open, airy feel throughout the main living spaces. The inviting living room features a striking skylight, while the island kitchen with breakfast bar provides the perfect setup for casual dining and entertaining. A generously sized family room offers flexible space for gatherings, movie nights, or working from home. The private primary suite includes a walk-in closet and a well-appointed five-piece bath for everyday comfort and relaxation. Step outside to enjoy the large covered deck ideal for summer barbecues and year-round outdoor living. Rarely available covered parking for three vehicles, plus an additional storage shed, adds exceptional convenience. A heat pump provides efficient heating and cooling for year-round comfort. The fully fenced yard offers privacy and space to enjoy. Conveniently located near Green River College, shopping, parks, schools, and major commuter routes, this home combines comfort, functionality, and an excellent location.
Watch Virtual Tour #1Property Features
Community: Lea Hill
Manuf-Double Wide
View: Territorial
Unit Can Stay: Yes
Exterior: Wood Products
Roof: Composition
Parking: Carport
Year Built: 2006
Taxes: $0.00
Buyer Broker Comp.: 2%
Listing #: 2481058
Lot Details
Lot Size: 0.09 acres
Paved
Sidewalk
Appliances That Stay
Dishwasher(s)
Dryer(s)
Microwave(s)
Refrigerator(s)
Stove(s)/Range(s)
Washer(s)
Watch Virtual Tour #2Interior
Cooling: Heat Pump
Heating: Heat Pump
Electric
Schools
District: Auburn
Elem: Buyer To Verify
Middle: Buyer To Verify
High: Buyer To Verify
Call or Email:
Grace Wamwere
What's Near 31600 126th Avenue SE #E29 Auburn, WA 98092?

Information is based on data available to the associate, including county records. The information has not been verified by the associate and all information presented should be verified by the buyer. Listings are provided by Northwest Multiple Listing Service as distributed by MLS GRID. The associate represented on this web site is not a multiple listing service but is a member of a local MLS.
DMCA Notice