
Luxury living at Enso #705 - SE corner view 2 bedroom.

Seller updates include wide plank oak floors, custom lighting, built-ins and furniture included in price.

Cozy gas fireplace anchors the living room, but does not distract from the floor to ceiling window wall view.

Private covered deck with a great vantage point over the Westlake corridor with the city and Lake Union view on display.

Westlake runs into Lake Union for a water view.

Private covered deck with a great vantage point over the Westlake corridor with the city and Lake Union view on display.

Whole Foods Market across the street, parks, restaurants, cafes, shops and wonderful services within blocks.

Spacious open living layout with a gorgeous kitchen on display, eating bar, dining table, built-in storage and office space too.

Stunning kitchen, both functional and fabulous!

Design on display.

The SE corner curved window walls create functional dining space with a view.

The SE corner curved window walls create functional dining space with a view.

9' high ceilings, concrete and steel construction, luxury high-rise living at its best!

Gas cooktop, basaltina stone slab counters, new refrigerator and dishwasher, tons of storage, convenient built-ins.

This condo is pristine! Only one owner, 2nd home, and barely used!

Custom designed furnishings for the space, included in price.

Beautiful built-in offers additional storage, display shelves and comfortable discreet desk.

So much storage throughout!

City views on display day and night while creating culinary delights.

Generous layout with room for multi-purpose used furniture in corridor in front of 2nd bedroom and 2nd bath.

2nd bedroom with floor to ceiling window wall shows off the city skyline with concealed shades too.

2nd bathroom offers tiled shower and sleek surfaces.

Primary bedroom fit for a king size bed with room to move (or exercise) too.

Ensuite 5-piece primary bath has a deep soaking tub, separate shower, dual sink vanity and walk-in closet.

Huge walk-in closet!

This bathtub is huge - fits Tea-for-Two!

A grand entry for a grand condo! Space to sit and remove shoes upon entry or just sit and ponder the unlimited options surrounding Enso if you ever leave.

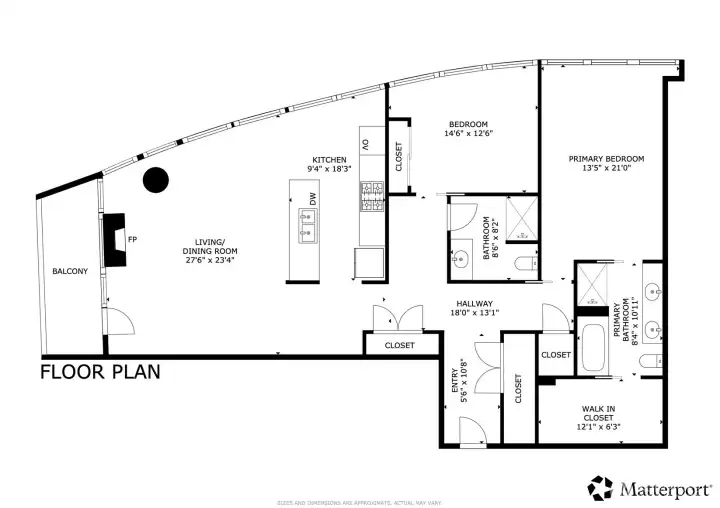
Enso 705 Floorplan

The curve is highlighted at the Enso lobby entrance too.

Full time facility manager and concierge staff to assist. And a comfortable place to meet and greet while coming and going.

3 fast elevators with warm and inviting vestibules.

Resident lounge with indoor/outdoor fireplace for a cozy retreat.

Resident sundeck with multiple barbecue grills, dining tables and chairs for outdoor enjoyment.

Huge Owner's lounge fully equipped to host quite the event or just enjoy in solitude.

Fully equipped kitchen and large dining table to expand your world, if needed.

Take in a sporting event on TV or just curl up with a book, this comfortable TV room is available for you.

Spacious fitness room with a variety of equipment to stay fit indoors.

Exercise studio too.

Coming or going, Enso is warm and inviting.

Enso Condominiums stands proud in South Lake Union.