8335 12th Avenue NW Seattle, WA 98117
8335 12th Avenue NW
Seattle, WA 98117
$859,900
Residential
4 Beds
2.25 Baths
1793 SqFt
Pending
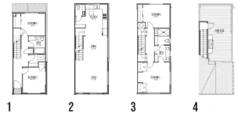
A light filled space with an outdoor space to match, this modern Ballard home offers 1,793 sq ft of flexible living plus courtyard access and a private rooftop deck. The entry level welcomes you with two bedrooms, a full bath, and a dedicated utility room—ideal for guests, work-from-home needs, or everyday functionality. Upstairs, the main level opens wide with generous living and dining spaces anchored by a thoughtfully designed kitchen featuring stainless steel appliances, ample cabinetry, bonus storage, and custom window coverings. A convenient powder bath completes the floor, making it equally suited for daily living and entertaining. The upper level is reserved for the primary suite and an additional bedroom that easily flexes as a nursery, office, or fitness space. The primary retreat is well-proportioned and private, complemented by a spacious bath and comfortable separation from the rest of the home. At the top, a rooftop deck expands living outdoors with gas, water, outlets, and perimeter lighting—perfect for hosting, relaxing, or enjoying long summer evenings. A deeded, EV-capable parking space in the alley adds everyday convenience. Just blocks from Soundview Playfield, Baker Park, Met Market, and Ballard’s dining and shopping scene, this home delivers space, flexibility, and neighborhood connection—wrapped in a modern design that truly lives well. (Call to learn about rate incentives)***
Property Features
Community: Whittier
Townhouse
View: Territorial
Fenced-Partially
Gas Available
Rooftop Deck
New Construction: Yes
Bus Line Nearby: Yes
Exterior: Cement Planked
Roof: Flat
Parking: Off Street
Year Built: 2026
HOA Dues: $5
2025 Taxes: $1.00
Buyer Broker Comp.: 2.5%
Listing #: 2480966
Lot Details
Lot Size: 0.02 acres
Alley
Curbs
Paved
Sidewalk
Appliances That Stay
Dishwasher(s)
Disposal
Microwave(s)
Refrigerator(s)
Stove(s)/Range(s)
Interior
Bath Off Primary
Dining Room
High Tech Cabling
Walk-In Closet(s)
Water Heater
Dbl Pane/Storm Window
Cooling: Ductless HP-Mini Split
Heating: Ductless HP-Mini Split, Wall Unit(s)
Electric
Schools
District: Seattle
Elem: Whittier
Middle: Whitman Mid
High: Ballard High
Call or Email:
Grace Wamwere
What's Near 8335 12th Avenue NW Seattle, WA 98117?

Information is based on data available to the associate, including county records. The information has not been verified by the associate and all information presented should be verified by the buyer. Listings are provided by Northwest Multiple Listing Service as distributed by MLS GRID. The associate represented on this web site is not a multiple listing service but is a member of a local MLS.
DMCA Notice