11130 SE 208th Street #G204 Kent, WA 98031
11130 SE 208th Street #G204
Kent, WA 98031
$299,998
Condominium
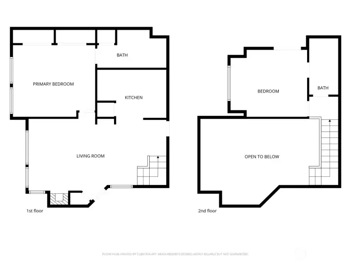
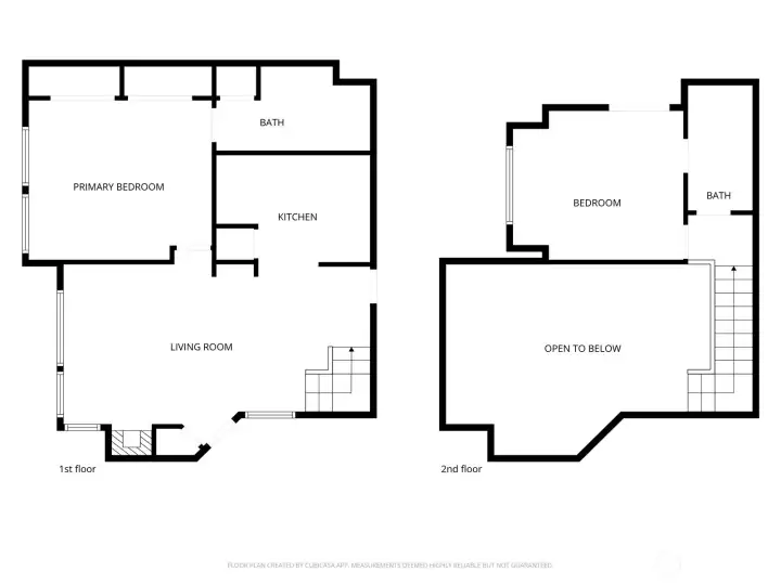
2 Beds
2.00 Baths
1024 SqFt
Active
Stunning, light-filled 2-bed, 2-bath second-floor condo in the gated Windsong Arbor community. Vaulted ceilings and walls of windows create an airy, welcoming feel throughout. Fresh new carpet on the lower level and new flooring in the kitchen and bathrooms add a crisp, move-in-ready touch. The inviting living room features a cozy gas fireplace with space above for TV plus a built-in shelving unit to display books or collectibles—this room is perfect for relaxing or entertaining. The functional kitchen offers generous storage and ample counter space. A spacious primary suite on the main level includes dual closets, a full bath, and a linen closet. Upstairs, enjoy a large secondary bedroom with dual closets and its own full-size bath—ideal for guests or roommates. All appliances stay, including washer and dryer. HOA covers water, gas, sewer, and garbage. One-car garage plus abundant guest parking. No rental cap—an excellent opportunity for investors. Enjoy being close to the community center featuring workout equipment and space for larger gatherings. Conveniently located just minutes to freeways, dining, and shopping.
Property Features
Community: East Hill
Townhouse
Floor: 2
Exterior: Metal/Vinyl
Exterior: Wood Products
Roof: Composition
Parking: Uncovered
Year Built: 1997
HOA Dues: $676
2025 Taxes: $3344.00
Buyer Broker Comp.: 2.5%
Listing #: 2480949
Appliances That Stay
Dishwasher(s)
Dryer(s)
Microwave(s)
Refrigerator(s)
Stove(s)/Range(s)
Washer(s)
Interior
Cooking-Electric
Dryer-Electric
Fireplace
Washer
Water Heater
Insulated Windows
Primary Bathroom
End Unit
Top Floor
Vaulted Ceilings
Balcony/Deck/Patio
End Unit
Insulated Windows
Primary Bath
Top Floor
Vaulted Ceilings
Cooling: None
Heating: Baseboard
Electric
Fireplaces: 1
Common Features
Athletic Court
Cable TV
Exercise Room
Fire Sprinklers
Outside Entry
Security Gate
Clubhouse
Schools
District: Kent
Elem: Glenridge Elem
Middle: Meeker Jnr High
High: Kentridge High
Call or Email:
Grace Wamwere
What's Near 11130 SE 208th Street #G204 Kent, WA 98031?

Information is based on data available to the associate, including county records. The information has not been verified by the associate and all information presented should be verified by the buyer. Listings are provided by Northwest Multiple Listing Service as distributed by MLS GRID. The associate represented on this web site is not a multiple listing service but is a member of a local MLS.
DMCA Notice