3535 Mathews Drive NW Bremerton, WA 98312
3535 Mathews Drive NW
Bremerton, WA 98312
$1,399,000
Residential
3 Beds
3.00 Baths
3430 SqFt
Active
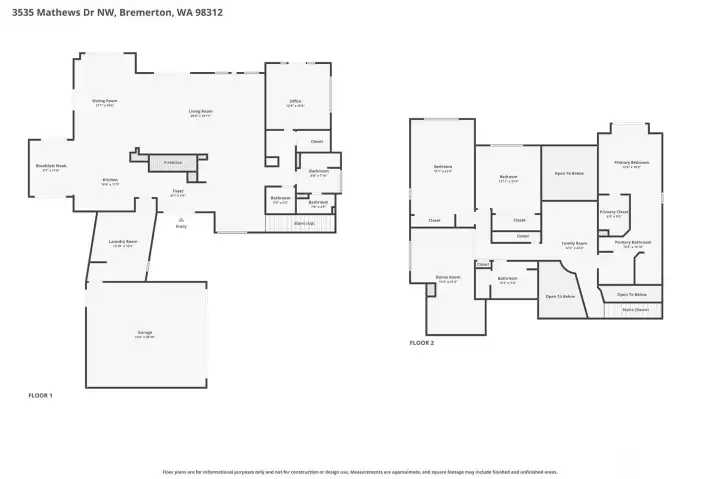
Nearly 100' of no bank waterfront, unobstructed views, this is quintessential Pacific NW living! Luxurious, spacious and unique 3-bedroom, +bonus room + den waterfront home with spectacular views of the Olympic Mountains. Enter across a tranquil koi pond into this striking two-story cedar and natural rock home featuring a dramatic 25-foot indoor waterfall & pond. Inside, enjoy a spacious kitchen with stainless steel appliances, cherry hardwood floors and a wine fridge. The wraparound living room has floor-to-ceiling windows showcasing sweeping Puget Sound and mountain views, filling the home with natural light. The family room is anchored by a black rock 6-foot flute wood-burning fireplace and has a wet bar. Plantation style shutters thru home. Main level includes: kitchen, 2 dining areas, living room, a primary suite w/bath, a convenient half bath, large laundry room and access to the attached two-car garage. Two primary suites provide excellent flexibility for guests or multi-generational living. The main-level primary suite features a private sauna, bath, and direct access to the deck, while the upper primary suite offers a five-piece bath and private balcony overlooking the bay.Outside, enjoy 80+ feet of no-bank waterfront from your large deck built over a stunning white crushed shell beach—an exceptionally rare setting. With 3,430 sq ft, no HOA, and a truly special waterfront lifestyle, this home is a private oasis.
Watch Virtual Tour #1Property Features
Community: Rocky Point
2 Story
View:
View: Bay
View: See Remarks
View: Sound
View: Territorial
Waterfront: No Bank
Waterfront: Saltwater
Waterfront: Sound
Cable TV
Deck
Fenced-Partially
Gas Available
High Speed Internet
Bus Line Nearby: Yes
Exterior: Stone
Exterior: Wood
Roof: Composition
Parking: Driveway
Parking: Attached Garage
Year Built: 1968
2025 Taxes: $11090.00
Buyer Broker Comp.: 2.5%
Listing #: 2480518
Lot Details
Lot Size: 0.19 acres
Dead End Street
Paved
Appliances That Stay
Dishwasher
Dryer
Microwave
Refrigerator
Stove(s)/Range(s)
Washer
Interior
Second Primary Bedroom
Bath Off Primary
Ceiling Fan(s)
Dining Room
Fireplace
French Doors
Sauna
Vaulted Ceiling(s)
Walk-In Closet(s)
Water Heater
Wet Bar
Wired for Generator
Dbl Pane/Storm Window
Cooling: None
Heating: Forced Air
Electric
Natural Gas
Wood
Fireplaces: 1
Schools
District: Bremerton #100c
Elem: Buyer To Verify
Middle: Buyer To Verify
High: Bremerton High
Call or Email:
Grace Wamwere
What's Near 3535 Mathews Drive NW Bremerton, WA 98312?

Information is based on data available to the associate, including county records. The information has not been verified by the associate and all information presented should be verified by the buyer. Listings are provided by Northwest Multiple Listing Service as distributed by MLS GRID. The associate represented on this web site is not a multiple listing service but is a member of a local MLS.
DMCA Notice