520 Conway Place Kennewick, WA 99336
520 Conway Place
Kennewick, WA 99336
$399,000
Residential
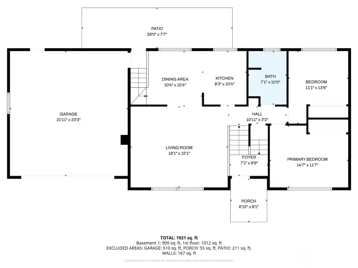
4 Beds
1.75 Baths
2086 SqFt
Active
Welcome to this inviting split-entry 4 bedroom home offering space, comfort, and fresh updates in a convenient Kennewick location. The upper level has been beautifully refreshed with brand-new flooring and interior paint, creating a bright, clean, and move-in-ready feel. Upstairs, you’ll find a tastefully remodeled bathroom featuring elegant marble countertops and quality finishes that add a sense of timeless style. The flexible split-entry design provides multiple living areas, allowing for easy entertaining, relaxing, or creating a dedicated work-from-home setup. Positioned on a corner lot with a 2-car garage, this home offers both functionality and curb appeal. A wonderful opportunity to enjoy updated interior features and generous living space in an established neighborhood. Call and schedule your tour today.
Property Features
Community: Kennewick
Split Entry
View: Territorial
Fenced-Partially
Gas Available
High Speed Internet
Outbuildings
Patio
Sprinkler System
Exterior: Wood
Roof: Composition
Parking: Driveway
Parking: Attached Garage
Parking: Off Street
Year Built: 1974
2025 Taxes: $2840.00
Buyer Broker Comp.: 2%
Listing #: 2479965
Lot Details
Lot Size: 0.19 acres
Corner Lot
Curbs
Paved
Sidewalk
Appliances That Stay
Dishwasher(s)
Dryer(s)
Microwave(s)
See Remarks
Stove(s)/Range(s)
Washer(s)
Interior
Dining Room
Fireplace
Sprinkler System
Dbl Pane/Storm Window
Cooling: Central A/C
Heating: Heat Pump, Forced Air
Electric
Fireplaces: 1
Schools
District: Kennewick
Call or Email:
Grace Wamwere
What's Near 520 Conway Place Kennewick, WA 99336?

Information is based on data available to the associate, including county records. The information has not been verified by the associate and all information presented should be verified by the buyer. Listings are provided by Northwest Multiple Listing Service as distributed by MLS GRID. The associate represented on this web site is not a multiple listing service but is a member of a local MLS.
DMCA Notice