1212 Oak Place Mount Vernon, WA 98273
1212 Oak Place
Mount Vernon, WA 98273
$500,000
Residential
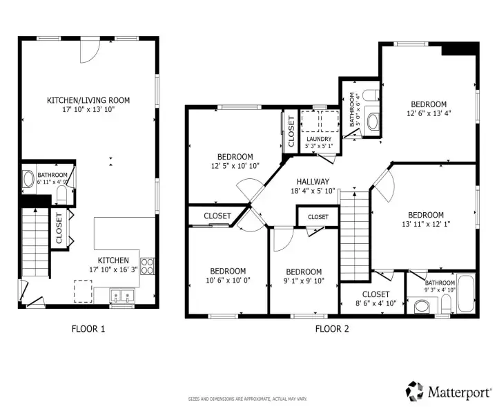
4 Beds
2.25 Baths
1689 SqFt
Active
Welcome to this spacious 2-story home in the desirable Meadows community, ideally positioned in a quiet cul-de-sac. A charming covered front porch welcomes you, leading into an open living space designed for everyday comfort and easy entertaining. The living room flows seamlessly into the kitchen and dining space, featuring a breakfast bar with additional seating and direct access to the partially fenced backyard. A convenient main-level half bath for guests. Upstairs, you will find four well-sized bedrooms plus a versatile bonus room with a closet, offering ideal flexibility for a fifth bedroom, home office, or media space. The primary suite includes a full bath and walk-in closet, while three additional bedrooms share a ¾ bath. Laundry is thoughtfully located on the upper level. Additional highlights include a large two-car garage with shop space, all appliances included, recently painted exterior, and a serviced furnace for peace of mind. Residents enjoy access to a community park with walking trails, playground, sports court, and a paved lot for RV, boat, or trailer parking. Conveniently located just minutes to I-5, shops and restaurants and blocks from the YMCA.
Watch Virtual Tour #1Property Features
Community: Mount Vernon
2 Story
Fenced-Partially
Patio
Exterior: Wood
Roof: Composition
Parking: Driveway
Parking: Attached Garage
Year Built: 1998
HOA Dues: $425
2025 Taxes: $5070.00
Buyer Broker Comp.: 2.5%
Listing #: 2479336
Lot Details
Lot Size: 0.14 acres
Cul-De-Sac
Paved
Appliances That Stay
Dishwasher(s)
Refrigerator(s)
Stove(s)/Range(s)
Interior
Dining Room
Walk-In Pantry
Walk-In Closet(s)
Dbl Pane/Storm Window
Cooling: None
Heating: Forced Air
Natural Gas
Community Features
Athletic Court
CCRs
Park
Playground
Trail(s)
Open Houses
Feb 21: 11:00 AM - 1:00 PM
Schools
District: Mount Vernon
Elem: Buyer To Verify
Middle: Buyer To Verify
High: Buyer To Verify
Call or Email:
Grace Wamwere
What's Near 1212 Oak Place Mount Vernon, WA 98273?

Information is based on data available to the associate, including county records. The information has not been verified by the associate and all information presented should be verified by the buyer. Listings are provided by Northwest Multiple Listing Service as distributed by MLS GRID. The associate represented on this web site is not a multiple listing service but is a member of a local MLS.
DMCA Notice