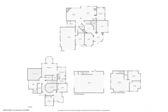
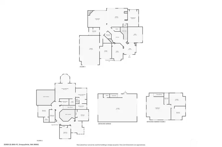
35909 SE 89th Place Snoqualmie, WA 98065
35909 SE 89th Place
Snoqualmie, WA 98065
$2,560,000
Residential
5 Beds
4.25 Baths
7100 SqFt
Active
Multigenerational estate offering privacy, scale & versatility on 7.5 wooded acres. Set privately at the end of a quiet country lane, this 4350sf custom home is thoughtfully designed for refined, flexible living. A grand 2-story entry with gorgeous chandeliers welcomes you into a bright, open design. The dramatic great room features soaring 2 story cathedral ceilings, floor-to-ceiling windows that flood the space with natural light, & a stunning 18 ft stone fireplace. An entertainer's dream, the chef's kitchen features high end appliances, oversized island, walk in pantry and NaNa Wall doors for effortless indoor-outdoor entertaining. The Primary suite is a true retreat with sitting area, spa inspired bath with steam shower, dramatic waterfall tub filler and 2 boutique style walk in closets. 3 bedrooms upstairs, plus flex media room with projector for cozy movie nights. 2 executive offices. Outside, enjoy 7.5 usable acres with covered patio, wood burning fireplace, heated pool, and ample space to gather and unwind. The detached 4 car garage with pull through doors includes a 1080 sf MIL with full kitchen, bedroom and great room - perfect for guests, multi-generational living or rental income. Large driveway offers parking for a small fleet! Peaceful rural living, just minutes from I-90 and Snoqualmie Ridge amenities, yet worlds away from noise & traffic. Discover the ultimate PNW lifestyle in this extraordinary estate. No HOA. Pre-inspected. Award winning Sno Valley schools.
Watch Virtual Tour #1Watch Virtual Tour #3Property Features
Community: Snoqualmie
2 Story
View: Territorial
High Speed Internet
Patio
Propane
Shop
Sprinkler System
Pool: In-Ground
Bus Line Nearby: Yes
Exterior: Cement Planked
Roof: Composition
Parking: Attached Garage
Parking: Detached Garage
Year Built: 2010
2025 Taxes: $17356.00
Buyer Broker Comp.: 2.5%
Listing #: 2479303
Lot Details
Lot Size: 7.54 acres
Dead End Street
Secluded
Appliances That Stay
Dishwasher(s)
Disposal
Double Oven
Dryer(s)
Microwave(s)
Refrigerator(s)
Stove(s)/Range(s)
Washer(s)
Watch Virtual Tour #2Interior
Bath Off Primary
Built-In Vacuum
Dining Room
Fireplace
French Doors
Jetted Tub
Security System
Sprinkler System
Walk-In Pantry
Walk-In Closet(s)
Water Heater
Wet Bar
Wired for Generator
Vaulted Ceilings
Cooling: Heat Pump
Heating: Forced Air
Electric
Propane
Fireplaces: 1
Open Houses
Feb 21: 1:00 PM - 4:00 PM
Schools
District: Snoqualmie Valley
Elem: Timber Ridge Elem
Middle: Snoqualmie Mid
High: Mount Si High
Call or Email:
Grace Wamwere
What's Near 35909 SE 89th Place Snoqualmie, WA 98065?

Information is based on data available to the associate, including county records. The information has not been verified by the associate and all information presented should be verified by the buyer. Listings are provided by Northwest Multiple Listing Service as distributed by MLS GRID. The associate represented on this web site is not a multiple listing service but is a member of a local MLS.
DMCA Notice