4231 53rd Ave NE Seattle, WA 98105
4231 53rd Ave NE
Seattle, WA 98105
$3,700,000
Residential
6 Beds
4.75 Baths
3566 SqFt
Active
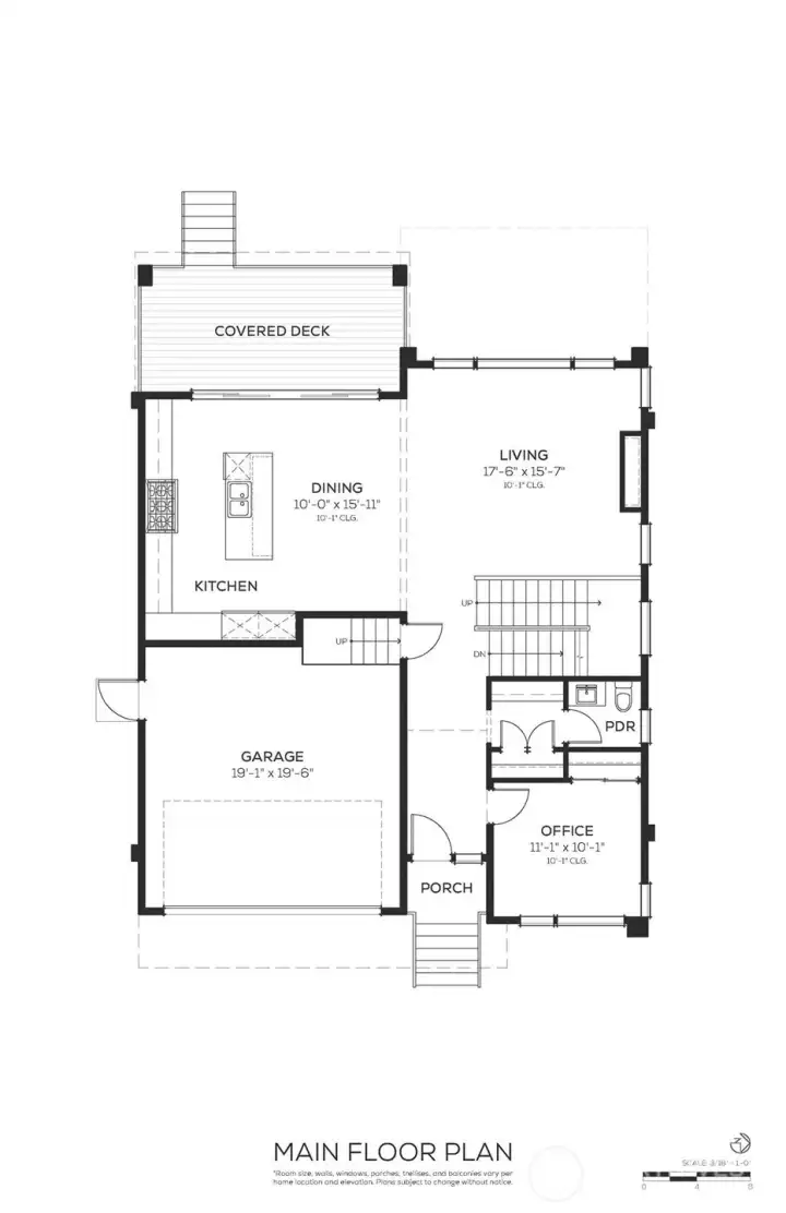
Dusty Boot Tour this Sunday 2/15, 11am–1pm. Be among the first to tour this upcoming Thomas James Homes with drywall recently completed, prior to finishes beginning. Secure now and close at completion, est. May 2026. TJH proudly presents this Scandinavian-inspired residence with eastern & southern views of Lake WA and abundant natural light throughout. Located within the coveted Laurelhurst Beach Club boundaries, this thoughtfully designed home features an expansive great room, chef’s kitchen, dining, and a main-level guest suite. The upper level includes a private primary retreat and three additional bedrooms. The lower level offers a bonus/media room and a permitted ADU with ensuite bedroom, kitchenette, washer/dryer hookups, and interior and exterior access—ideal for guests, multi-generational living, or rental flexibility.
Property Features
Community: Laurelhurst
2 Stories w/Bsmnt
View: Lake
View: Mountain(s)
View: Partial
View: Territorial
Deck
Electric Car Charging
Fenced-Fully
Patio
New Construction: Yes
Exterior: Wood
Exterior: Wood Products
Roof: Composition
Parking: Attached Garage
Year Built: 2026
2026 Taxes: $1.00
Buyer Broker Comp.: 2%
Listing #: 2478454
Lot Details
Lot Size: 0.11 acres
Curbs
Paved
Sidewalk
Appliances That Stay
Dishwasher(s)
Disposal
Microwave(s)
Refrigerator(s)
Stove(s)/Range(s)
Interior
Second Kitchen
Bath Off Primary
Dining Room
Fireplace
Walk-In Closet(s)
Dbl Pane/Storm Window
Vaulted Ceilings
Cooling: Ductless HP-Mini Split, Heat Pump
Heating: Ductless HP-Mini Split, Heat Pump
Electric
Fireplaces: 1
Schools
District: Seattle
Elem: Laurelhurst
Middle: Eckstein Mid
High: Roosevelt High
Call or Email:
Grace Wamwere
What's Near 4231 53rd Ave NE Seattle, WA 98105?

Information is based on data available to the associate, including county records. The information has not been verified by the associate and all information presented should be verified by the buyer. Listings are provided by Northwest Multiple Listing Service as distributed by MLS GRID. The associate represented on this web site is not a multiple listing service but is a member of a local MLS.
DMCA Notice