8140 73rd Place NE Marysville, WA 98270
8140 73rd Place NE
Marysville, WA 98270
$844,990
Residential
4 Beds
2.75 Baths
2674 SqFt
Active
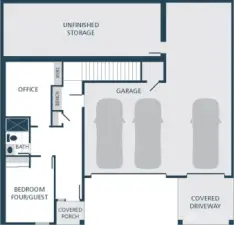
Perched high above the bluff, Noble Ridge is an intimate view community of just 14 homes, offering a rare combination of privacy, scenery, and convenience. Tucked away on a quiet dead-end cul-de-sac with trail access, this stunning enclave captures sweeping, unobstructed views of the Olympic Mountains, the Puget Sound, and the surrounding territorial landscape. The STELLA on Lot 11 is a thoughtfully designed inverted two-story home, created to fully embrace its breathtaking setting. The main living area is located upstairs, where expansive windows and a spectacular front deck frame panoramic views stretching from the mountains to downtown Everett. The chef’s dream kitchen anchors the space, featuring an impressive 8-foot island, elegant white soft-close cabinetry, and luxurious 3cm quartz countertops—perfect for entertaining or simply soaking in the scenery. The main level offers three spacious bedrooms and two beautifully appointed bathrooms, while the lower level provides added flexibility with a bedroom, full bath, and dedicated office space—ideal for guests or remote work. Step outside to enjoy both the large upper deck and a fully landscaped backyard, each offering serene territorial views and space to relax. Noble Ridge and the STELLA deliver refined design, natural beauty, and an elevated lifestyle in one exceptional home. Enjoy the benefits of NEW! New home warranty, energy efficient, low maintenance, updated safety and modern lifestyle design elements.
Property Features
Community: Sunnyside
2 Story
View: City
View: Mountain(s)
View: Sound
View: Territorial
Cable TV
Patio
New Construction: Yes
Exterior: Cement/Concrete
Roof: Composition
Parking: Attached Garage
Year Built: 2026
HOA Dues: $99
2023 Taxes: $0.00
Buyer Broker Comp.: 2%
Listing #: 2477754
Lot Details
Lot Size: 0.14 acres
Paved
Sidewalk
Appliances That Stay
Dishwasher(s)
Microwave(s)
Stove(s)/Range(s)
Interior
Bath Off Primary
Dining Room
Fireplace
High Tech Cabling
Loft
Walk-In Pantry
Walk-In Closet(s)
Dbl Pane/Storm Window
Vaulted Ceilings
Cooling: Ductless HP-Mini Split, Heat Pump
Heating: Wall Unit(s), Heat Pump
Electric
Natural Gas
Fireplaces: 1
Schools
District: Marysville
High: Marysville Getchell High
Call or Email:
Grace Wamwere
What's Near 8140 73rd Place NE Marysville, WA 98270?

Information is based on data available to the associate, including county records. The information has not been verified by the associate and all information presented should be verified by the buyer. Listings are provided by Northwest Multiple Listing Service as distributed by MLS GRID. The associate represented on this web site is not a multiple listing service but is a member of a local MLS.
DMCA Notice