511 Pleasant Harbor Road Brinnon, WA 98320

view from the beach

Permitted plan front

Permitted plan side view

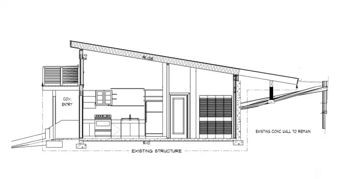
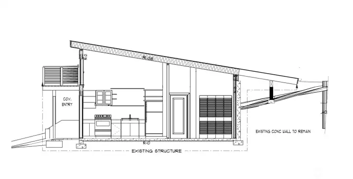
Permitted plan interior view

New composite deck

New deck

View from water

Site plan
511 Pleasant Harbor Road
Brinnon, WA 98320
$199,999
Residential
1 Beds
1.00 Baths
601 SqFt
Pending Feasibility
Build your modern cabin by summer! Rare opportunity to secure permitted waterfront property in one of Hood Canal's most peaceful and serene spaces. Own 90ft of frontage on the sought after Pleasant Harbor - a great place to observe wildlife, launch your kayak or enjoy a picnic with friends. Whether you want to live off grid, have a weekend escape or vacation rental, this one will be perfect for you. Building permits and septic permits in hand! Plans use existing foundation so no need to worry about that. 1 bed 1 bath 601sf modern cabin with high ceilings and attached and detached decks. New composite 20'x20' deck overlooks the water for unobstructed views is already in place. Price includes land and permits to build a new septic and structure. Price does not include construction costs. Inquire today.
Property Features
Community: Brinnon
1 Story
View: Canal
Waterfront: Medium Bank
Deck
Exterior: See Remarks
Roof: See Remarks
Parking: Driveway
Year Built: 2026
2026 Taxes: $1643.00
Buyer Broker Comp.: 2.5%
Listing #: 2476715
Lot Details
Lot Size: 0.19 acres
Value In Land
Interior
Cooling: Ductless HP-Mini Split
Heating: Heat Pump, See Remarks
Electric
Call or Email:
Grace Wamwere
What's Near 511 Pleasant Harbor Road Brinnon, WA 98320?

Information is based on data available to the associate, including county records. The information has not been verified by the associate and all information presented should be verified by the buyer. Listings are provided by Northwest Multiple Listing Service as distributed by MLS GRID. The associate represented on this web site is not a multiple listing service but is a member of a local MLS.
DMCA Notice