14952 NW Maple Lane Seabeck, WA 98380
14952 NW Maple Lane
Seabeck, WA 98380
$799,900
Residential
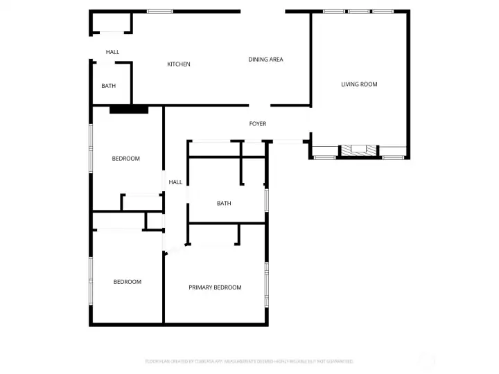
3 Beds
1.50 Baths
1441 SqFt
Pending Inspection
Rare waterfront opportunity offering an increasingly hard-to-find combination of level acreage, single-level living, and private beach access. Come check out this thoughtfully maintained 3 bed/1.5 bath rambler on a level .7-acre setting with sweeping Hood Canal and mountain views—where quiet mornings, beach walks, and sunset evenings feel timeless. Enjoy 12 ft of deeded private beachfront with tideland rights, accessed via a rare flag-shaped parcel with a private beach corridor and recently repaired private stairs. Backing to Scenic Beach State Park for permanent open space and trail access. Thoughtfully maintained with numerous updates, including a brand-new HVAC system, 50-year roof (2014), wood-burning fireplace, hot tub, 2-car garage plus covered carport, enclosed gardens, firepit and generous grounds for ample parking, ideal for gatherings, games, and making lasting memories.
Watch Virtual Tour #1Property Features
Community: Miami Beach
1 Story
View: Canal
View: Mountain(s)
View: See Remarks
Waterfront: Medium Bank
Deck
Hot Tub/Spa
RV Parking
Exterior: Wood
Roof: Composition
Parking: Attached Carport
Parking: Attached Garage
Parking: RV Parking
Year Built: 1969
2025 Taxes: $0.00
Buyer Broker Comp.: 2.5%
Listing #: 2476660
Lot Details
Lot Size: 0.70 acres
Dead End Street
Dirt Road
Appliances That Stay
Dishwasher(s)
Dryer(s)
Microwave(s)
Refrigerator(s)
See Remarks
Stove(s)/Range(s)
Washer(s)
Interior
Ceiling Fan(s)
Dining Room
Fireplace
French Doors
Hot Tub/Spa
Water Heater
Wired for Generator
Dbl Pane/Storm Window
Vaulted Ceilings
Cooling: Heat Pump
Heating: Heat Pump
Electric
Fireplaces: 1
Schools
District: Central Kitsap #401
Elem: Buyer To Verify
Middle: Buyer To Verify
High: Buyer To Verify
Call or Email:
Grace Wamwere
What's Near 14952 NW Maple Lane Seabeck, WA 98380?

Information is based on data available to the associate, including county records. The information has not been verified by the associate and all information presented should be verified by the buyer. Listings are provided by Northwest Multiple Listing Service as distributed by MLS GRID. The associate represented on this web site is not a multiple listing service but is a member of a local MLS.
DMCA Notice