12824 97th Place NE Kirkland, WA 98034
12824 97th Place NE
Kirkland, WA 98034
$1,250,000
Residential
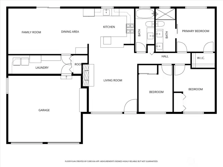
3 Beds
1.75 Baths
1350 SqFt
Active
Juanita Gem! Beautifully remodeled rambler filled with luxurious touches! No expenses spared in 2018 studs out remodel. New plumbing and electrical, roof, furnace, windows, siding, luxury vinyl plank flooring, slab quartz counters, stainless steel appliances, gas range, efficient tankless water heater, custom cabinets, spacious drop zone utility room, & high end fixtures throughout. Expansive level and totally fenced in backyard with a new lawn for you and yours to enjoy. Roomy/finished 2 car garage. Award winning Lake Washington schools & less than 2 miles from The Juanita Village, and seasonal Farmer's Market at Juanita Beach. Welcome to the Kirkland Life!
Watch Virtual Tour #1Property Features
Community: North Juanita
1 Story
Fenced-Fully
Gas Available
High Speed Internet
Patio
Outdoor Fireplace
Bus Line Nearby: Yes
Exterior: Cement Planked
Exterior: Wood Products
Roof: Composition
Parking: Attached Garage
Parking: Off Street
Year Built: 1972
2025 Taxes: $8407.00
Buyer Broker Comp.: 2.5%
Listing #: 2476500
Lot Details
Lot Size: 0.17 acres
Curbs
Paved
Sidewalk
Appliances That Stay
Dishwasher(s)
Disposal
Dryer(s)
Microwave(s)
Refrigerator(s)
Stove(s)/Range(s)
Washer(s)
Tankless Water Heater
Interior
Bath Off Primary
Dining Room
Fireplace
Water Heater
Dbl Pane/Storm Window
Cooling: Central A/C
Heating: Forced Air
Electric
Natural Gas
Fireplaces: 1
Open Houses
Mar 7: 1:00 PM - 3:00 PM
Mar 8: 1:00 PM - 3:00 PM
Schools
District: Lake Washington
Elem: Juanita Elem
Middle: Finn Hill Middle
High: Juanita High
Call or Email:
Grace Wamwere
What's Near 12824 97th Place NE Kirkland, WA 98034?

Information is based on data available to the associate, including county records. The information has not been verified by the associate and all information presented should be verified by the buyer. Listings are provided by Northwest Multiple Listing Service as distributed by MLS GRID. The associate represented on this web site is not a multiple listing service but is a member of a local MLS.
DMCA Notice