461 Sportsmens Street SW Ocean Shores, WA 98569
461 Sportsmens Street SW
Ocean Shores, WA 98569
$289,900
Residential
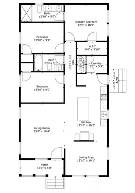
3 Beds
1.75 Baths
1320 SqFt
Pending
Welcome home to this charming coastal retreat near the Beach and the North Jetty. Take a stroll on the nearby beach trail, or stand in awe at the king tides at the Jetty. This 3 bedroom, 1.75 bath, approx. 1,320 sq.ft. new construction doublewide manufactured home offers a covered front deck and a large yard set up for easy maintenance. Enjoy the open concept layout designed for easy entertainment. The stylish kitchen boasts stainless steel appliances, full height upper cabinets, and a large island with eating bar. The primary suite bathroom has convenient dual vanities and a walk-in shower. There's lots of room to store your beach wear in the primary suite's walk-in closet. And, with 2 extra bedrooms, there is plenty of room to invite friends. Bonus: Stay warm with the Heat Pump. You don't want to miss this opportunity to own at the Beach at such an affordable price!
Property Features
Community: Ocean Shores
Manuf-Double Wide
View: Territorial
Deck
New Construction: Yes
Exterior: Wood
Exterior: Wood Products
Roof: Composition
Parking: Driveway
Year Built: 2025
2026 Taxes: $1898.00
Buyer Broker Comp.: 2.5%
Listing #: 2475704
Lot Details
Lot Size: 0.18 acres
Lot Dimensions: 34x66x72x73x115
Corner Lot
Paved
Appliances That Stay
Dishwasher(s)
Refrigerator(s)
Stove(s)/Range(s)
Interior
Bath Off Primary
Dining Room
Walk-In Closet(s)
Water Heater
Dbl Pane/Storm Window
Cooling: Heat Pump
Heating: Heat Pump
Electric
Schools
District: North Beach
Call or Email:
Grace Wamwere
What's Near 461 Sportsmens Street SW Ocean Shores, WA 98569?

Information is based on data available to the associate, including county records. The information has not been verified by the associate and all information presented should be verified by the buyer. Listings are provided by Northwest Multiple Listing Service as distributed by MLS GRID. The associate represented on this web site is not a multiple listing service but is a member of a local MLS.
DMCA Notice