4604 224th Place SW Mountlake Terrace, WA 98043
4604 224th Place SW
Mountlake Terrace, WA 98043
$845,000
Residential
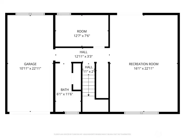
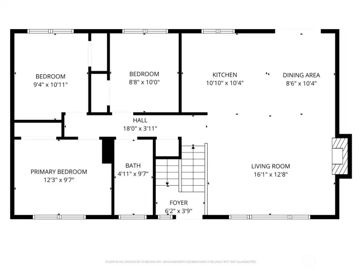
4 Beds
1.50 Baths
1728 SqFt
Active
Welcome home to comfort, space, & timeless charm in this beautifully refreshed split-level retreat, ideally situated on a spacious 7,500+ sqft lot with a potential gardener’s paradise & a sunny south-facing backyard complete with a fully enclosed freestanding shed for added storage or workspace. Enjoy four delicious blueberry bushes that produce fresh, homegrown fruit right in your own yard. Fresh exterior paint, updated interior doors, and newly painted dining & living room ceilings create a crisp feel. The kitchen features SS appliances, creating a stylish & functional heart of the home. With 4 spacious bedrooms, gleaming hardwood floors, cozy fireplaces, & a versatile bonus room ideal for entertainment or a private retreat. The property offers potential to convert into a duplex, providing flexibility for multi generational living or the opportunity to generate additional rental income. Ideally located within a quick bicycle ride to the light rail line, and near grocery stores, parks, and schools with easy commuter access, this is an exceptional opportunity you will not want to miss.
Watch Virtual Tour #1Property Features
Community: Mountlake Terrace
Split Entry
View: Territorial
Outbuildings
Patio
Exterior: Wood Products
Roof: Composition
Parking: Attached Garage
Year Built: 1963
2025 Taxes: $5042.00
Buyer Broker Comp.: 2.5%
Listing #: 2475236
Lot Details
Lot Size: 0.18 acres
Curbs
Paved
Sidewalk
Appliances That Stay
Dishwasher(s)
Disposal
Dryer(s)
Microwave(s)
Refrigerator(s)
Stove(s)/Range(s)
Washer(s)
Watch Virtual Tour #2Interior
Dining Room
Fireplace
Cooling: None
Heating: Forced Air
Electric
Natural Gas
Fireplaces: 2
Open Houses
Feb 19: 4:00 PM - 6:00 PM
Feb 20: 4:00 PM - 6:00 PM
Feb 21: 11:00 AM - 1:00 PM
Feb 22: 1:00 PM - 4:00 PM
Feb 23: 1:00 PM - 4:00 PM
Feb 24: 1:00 PM - 4:00 PM
Feb 25: 1:00 PM - 4:00 PM
Feb 26: 1:00 PM - 4:00 PM
Feb 27: 1:00 PM - 4:00 PM
Schools
District: Edmonds
Elem: Cedar Way Elem
Middle: Brier Terrace Mid
High: Mountlake Terrace Hi
Call or Email:
Grace Wamwere
What's Near 4604 224th Place SW Mountlake Terrace, WA 98043?

Information is based on data available to the associate, including county records. The information has not been verified by the associate and all information presented should be verified by the buyer. Listings are provided by Northwest Multiple Listing Service as distributed by MLS GRID. The associate represented on this web site is not a multiple listing service but is a member of a local MLS.
DMCA Notice