8609 Soper Hill Road #G147 Marysville, WA 98270
8609 Soper Hill Road #G147
Marysville, WA 98270
$585,000
Condominium
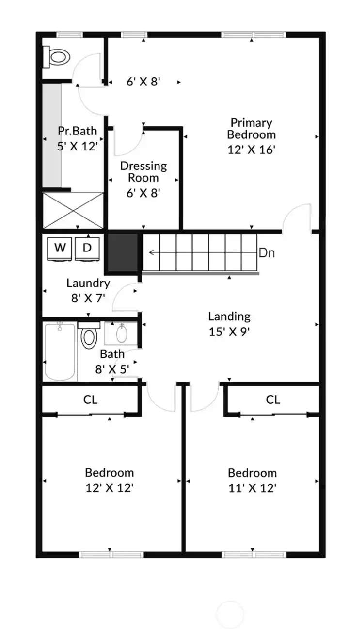
3 Beds
2.50 Baths
1601 SqFt
Active
Welcome to 21 Degrees—an almost-new two-story home where modern design meets everyday luxury. Featuring sleek architecture, and upscale designer finishes. This residence shines from top to bottom. Ideally positioned near Hwy 9, Hwy 2, and I-5 in the highly sought-after Lake Stevens School District, you’re also minutes from new restaurants and shopping. A private entry opens to a bright, open kitchen with a large island flowing seamlessly into the gathering room—perfect for hosting or unwinding. Upstairs, a flexible loft leads to the stunning primary suite with soaring vaulted ceilings, a generous walk-in closet, and a spa-inspired ensuite bath. Complete with a side-by-side two-car garage plus extra driveway parking, this almost-new home delivers style, comfort, and convenience in one irresistible package.
Watch Virtual Tour #1Property Features
Community: Marysville
Condo (2 Levels)
Floor: 1
View: Territorial
Exterior: Cement/Concrete
Exterior: Wood Products
Roof: Composition
Parking: Individual Garage
Year Built: 2024
HOA Dues: $179
2025 Taxes: $4487.00
Buyer Broker Comp.: 2.5%
Listing #: 2475089
Lot Details
Lot Size: 0.04 acres
Curbs
Paved
Appliances That Stay
Dishwasher(s)
Dryer(s)
Microwave(s)
Refrigerator(s)
Stove(s)/Range(s)
Washer(s)
Interior
Cooking-Electric
Dryer-Electric
Ice Maker
Sprinkler System
Walk-In Closet(s)
Washer
Water Heater
Insulated Windows
Primary Bathroom
Vaulted Ceilings
Insulated Windows
Primary Bath
Sprinkler System
Vaulted Ceilings
Walk-in Closet
Cooling: Ductless HP-Mini Split
Heating: Ductless HP-Mini Split
Electric
Open Houses
Feb 21: 1:00 PM - 3:00 PM
Schools
District: Lake Stevens
Elem: Stevens Creek Elementary
Middle: Cavelero
High: Lake Stevens Snr Hig
Call or Email:
Grace Wamwere
What's Near 8609 Soper Hill Road #G147 Marysville, WA 98270?

Information is based on data available to the associate, including county records. The information has not been verified by the associate and all information presented should be verified by the buyer. Listings are provided by Northwest Multiple Listing Service as distributed by MLS GRID. The associate represented on this web site is not a multiple listing service but is a member of a local MLS.
DMCA Notice