18517 44th Avenue W Lynnwood, WA 98037

Welcome Home

Open concept remodeled kitchen with island, stainless steel appliance, granite countertops. Lots of natural light.

Remodeled main bath.

Lower leve 1/2 bath utiility room. Washer and dryer stay.

Gardeners delight with several raised garden beds. Greenhouse, tool shed and chicken coop. Chickens can stay if desired.
18517 44th Avenue W
Lynnwood, WA 98037
$805,000
Residential
4 Beds
2.50 Baths
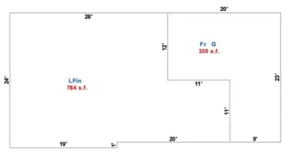
2216 SqFt
Active
Welcome home to this remodeled modern home with 4 bedrooms, 2.5 bath on corner lot/prime location. Stainless steel appliances, kitchen w/granite counter tops and open floor plan. Large windows provides abundant natural light to main living area and open concept kitchen. Subpanel in garage. EV ready outlet in garage. Well insulated and air sealed home, energy efficient. Close to park, library, community center & pool, schools, shopping and restaurants. Projector in downstairs living room stays with home. Relax on private deck. Greenhouse 6 1/2 X 7 1/2. A 4x6 chicken coop with a 16x24 chicken run. Chickens can stay if desired. Newer roof and furnace, replaced 2018. Heat pump water heater replaced 2020. Gardener's paradise, multiple raised garden beds throughout property. On main bus line. Minutes to Lynnwood Light rail and bus transit stations. RV Parking.
Property Features
Community: Creekside Park
Split Entry
Cable TV
Deck
Fenced-Partially
Green House
Exterior: Wood
Roof: Composition
Parking: Driveway
Parking: Attached Garage
Parking: Off Street
Year Built: 1966
2026 Taxes: $5653.00
Buyer Broker Comp.: 2.5%
Listing #: 2475073
Lot Details
Lot Size: 0.17 acres
Corner Lot
Appliances That Stay
Dishwasher
Disposal
Dryer
Refrigerator
Stove(s)/Range(s)
Washer
Interior
Bath Off Primary
Fireplace
Cooling: None
Heating: Forced Air, Baseboard
Electric
Natural Gas
Wood
Fireplaces: 2
Schools
District: Edmonds
Elem: Buyer To Verify
Middle: Buyer To Verify
High: Buyer To Verify
Call or Email:
Grace Wamwere
What's Near 18517 44th Avenue W Lynnwood, WA 98037?

Information is based on data available to the associate, including county records. The information has not been verified by the associate and all information presented should be verified by the buyer. Listings are provided by Northwest Multiple Listing Service as distributed by MLS GRID. The associate represented on this web site is not a multiple listing service but is a member of a local MLS.
DMCA Notice