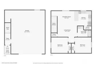
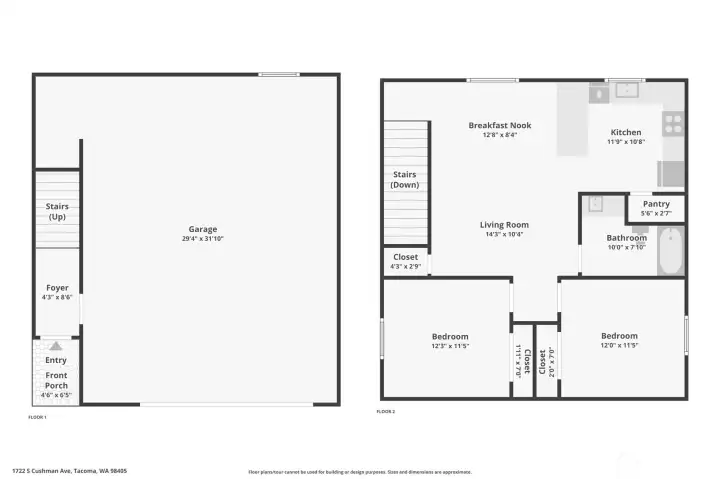
1722 S Cushman Avenue #B Tacoma, WA 98405
1722 S Cushman Avenue #B
Tacoma, WA 98405
$419,950
Residential
2 Beds
1.00 Baths
960 SqFt
Pending
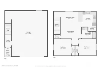
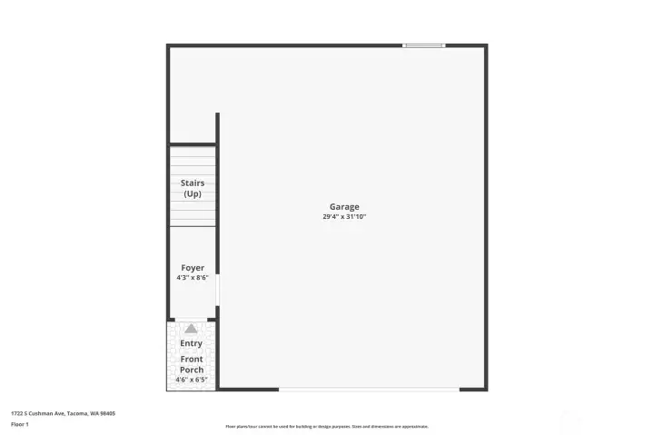
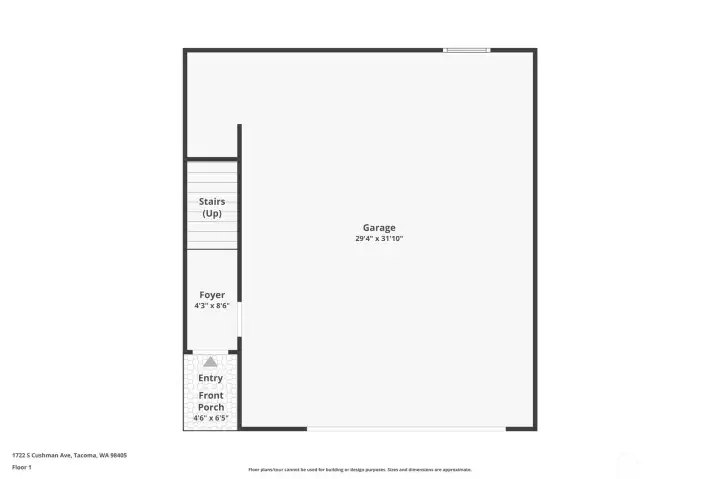
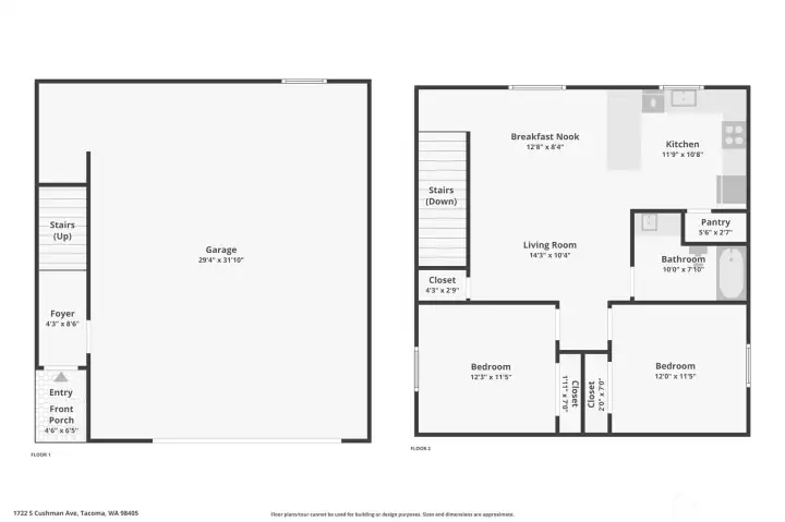
Can I take your order? Yes, I'd like a nice spacious garage with a side of house please! That's what you'll get in this 2 bed 1 bath almost new house built in 2022. Experience modern living in this open floor plan with large quartz kitchen, comfortable bedrooms. All this on top of a large 876 square foot heated and insulated garage. Park cars, toys, work on projects or use some of the space to add an office or bedroom. 1 additional off street parking spot.
Watch Virtual Tour #1Property Features
Community: Hilltop
2 Story
Exterior: Cement Planked
Roof: Composition
Parking: Attached Garage
Year Built: 2022
HOA Dues: $5
2026 Taxes: $0.00
Buyer Broker Comp.: 2.5%
Listing #: 2473195
Lot Details
Lot Size: 0.05 acres
Interior
Cooling: Heat Pump
Heating: Wall Unit(s), Heat Pump
Electric
Call or Email:
Grace Wamwere
What's Near 1722 S Cushman Avenue #B Tacoma, WA 98405?

Information is based on data available to the associate, including county records. The information has not been verified by the associate and all information presented should be verified by the buyer. Listings are provided by Northwest Multiple Listing Service as distributed by MLS GRID. The associate represented on this web site is not a multiple listing service but is a member of a local MLS.
DMCA Notice