1431 Bandera Avenue SE North Bend, WA 98045
1431 Bandera Avenue SE
North Bend, WA 98045
$1,325,000
Residential
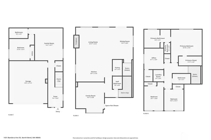
5 Beds
3.25 Baths
3420 SqFt
Active
Seize the opportunity to enjoy elevated living with comfort, style, & convenience in the coveted Cascade Canyon Neighborhood. Rising above the rest w/ stunning mountain views and exceptional craftsmanship, this 5-bed contemporary home is impeccably maintained & upgraded throughout, it offers true move-in perfection. Highlights include hardwoods throughout, chef-inspired kitchen with waterfall counters, a tiled spa-inspired ensuite, designer finishes, A/C, EV charger, & whole-house Generac generator for peace of mind. The versatile lower level is ideal for multi-generational living, overnight guests, or live-in Nanny. Outdoor living boasts a covered patio, terraced & private backyard with sweeping views, as well as river & trail access just steps away. Come see what North Bend has to offer!
Watch Virtual Tour #1Property Features
Community: Tanner
2 Story
View: Mountain(s)
View: Territorial
Cable TV
Electric Car Charging
Fenced-Fully
Gas Available
High Speed Internet
Patio
Exterior: Cement Planked
Exterior: Wood
Exterior: Wood Products
Roof: Composition
Parking: Attached Garage
Year Built: 2021
HOA Dues: $57
2025 Taxes: $10347.00
Buyer Broker Comp.: 2.5%
Listing #: 2471271
Lot Details
Lot Size: 0.15 acres
Curbs
Paved
Sidewalk
Appliances That Stay
Dishwasher(s)
Disposal
Dryer(s)
Microwave(s)
Refrigerator(s)
Stove(s)/Range(s)
Washer(s)
Watch Virtual Tour #2Interior
Bath Off Primary
Double Pane/Storm Window
Dining Room
Fireplace
High Tech Cabling
Solarium/Atrium
Walk-In Pantry
Walk-In Closet(s)
Water Heater
Wired for Generator
Cooling: Central A/C, Forced Air, 90%+ High Efficiency
Heating: 90%+ High Efficiency, Forced Air
Natural Gas
Fireplaces: 1
Community Features
CCRs
Park
Playground
Trail(s)
Schools
District: Snoqualmie Valley
Elem: Buyer To Verify
Middle: Buyer To Verify
High: Mount Si High
Call or Email:
Grace Wamwere
What's Near 1431 Bandera Avenue SE North Bend, WA 98045?

Information is based on data available to the associate, including county records. The information has not been verified by the associate and all information presented should be verified by the buyer. Listings are provided by Northwest Multiple Listing Service as distributed by MLS GRID. The associate represented on this web site is not a multiple listing service but is a member of a local MLS.
DMCA Notice