9808 NE 33rd Street Bellevue, WA 98004
9808 NE 33rd Street
Bellevue, WA 98004
$4,574,950
Land
0 Beds
0.00 Baths
0 SqFt
Active
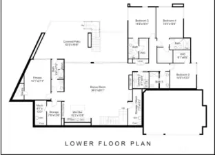
Build your dream home on this rare view property in coveted West Bellevue. The value is in the land, sweeping views, and custom architectural plans with permits in progress. The nearly-level 18,105 sq.ft. lot offers generous, usable yard space and sun-filled northwesterly views of Lake Washington and Olympic Mountain sunsets. Thoughtfully designed by acclaimed local firm McCullough Architects, the plans are tailored to the site and ready for your personal touch. Bring your builder and interior designer to select colors, fixtures, and finishes that reflect your vision. Purchase price includes architectural plans. Photos contain artist renderings of architectural plans. The proposed 6,975 sq.ft. residence features a main-level living design with daylight basement, 5 bedrooms, and 6.5 baths. The main level offers partial views from living and dining rooms, sliding glass walls to a covered view deck, an entertainer’s kitchen, and main level primary suite and guest suite. Please no tours of existing home or deck until after mutual acceptance. Buyer to verify all plan and permitting details. This is an exceptional location and lot - truly unique. Drive by and take in the views!
Property Features
Community: West Bellevue
Res-Less thn 1 Ac
View: Lake
View: Mountain(s)
View: Partial
View: Territorial
Pool: Above Ground
2025 Taxes: $21111.00
Buyer Broker Comp.: 2%
Listing #: 2471240
Lot Details
Lot Size: 0.42 acres
Corner Lot
Paved
Topography: Level
Topography: Sloped
Road Sides: South and West
Road: Paved
Utilities
Electricity: On Property
Water: Available
Water: In Street
Water: On Property
Gas: On Property
Sewer: Available
Sewer: On Property
Schools
District: Bellevue
Elem: Clyde Hill Elem
Middle: Chinook Mid
High: Bellevue High
Call or Email:
Grace Wamwere
What's Near 9808 NE 33rd Street Bellevue, WA 98004?

Information is based on data available to the associate, including county records. The information has not been verified by the associate and all information presented should be verified by the buyer. Listings are provided by Northwest Multiple Listing Service as distributed by MLS GRID. The associate represented on this web site is not a multiple listing service but is a member of a local MLS.
DMCA Notice