6004 W Tapps Drive E Bonney Lake, WA 98391
6004 W Tapps Drive E
Bonney Lake, WA 98391
$299,950
Land
0 Beds
0.00 Baths
0 SqFt
Active
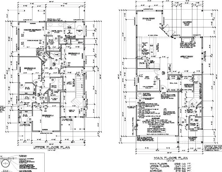
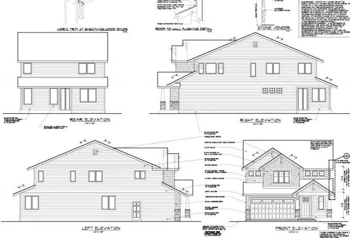
New price on this permit ready lot just a block from the lake. All permitted house plans are included in the sale. Seller has been through the permitting prosses with the city and has an approved house plan. Water and sewer on property. Approved 4 bedroom 2335 sq. ft. home is ready to be built. Use our builder, or use yours! Check with the city to all final requirements. Floorplan and site plan in supplements.
Property Features
Community: Lake Tapps
Res-Less thn 1 Ac
View: Lake
Corners Flagged
Pool: Above Ground
2026 Taxes: $0.00
Buyer Broker Comp.: 2.5%
Listing #: 2471155
Lot Details
Lot Size: 0.19 acres
Paved
Topography: Level
Road: County Maintained
Road: Paved
Utilities
Electricity: On Property
Water: Available
Water: On Property
Gas: In Street
Sewer: Available
Sewer: On Property
Community Features
Boat Launch
Park
Schools
District: Sumner-Bonney Lake
Elem: Emerald Hills Elem
Call or Email:
Grace Wamwere
What's Near 6004 W Tapps Drive E Bonney Lake, WA 98391?

Information is based on data available to the associate, including county records. The information has not been verified by the associate and all information presented should be verified by the buyer. Listings are provided by Northwest Multiple Listing Service as distributed by MLS GRID. The associate represented on this web site is not a multiple listing service but is a member of a local MLS.
DMCA Notice