312 Avenue D Snohomish, WA 98290
312 Avenue D
Snohomish, WA 98290
$1,998,000
Residential
6 Beds
3.50 Baths
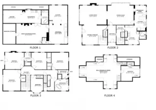
7024 SqFt
Active
There are homes you pass by… and then there are homes that hold you. The Iverson House is the latter. Anchored proudly along historic Avenue D, this iconic Snohomish estate stands as a rare stewarded landmark—where craftsmanship, scale, and story converge. From the moment you arrive, there is a quiet authority to the home. A sense that time has moved forward, yet this place has remained grounded in grace. Inside, sunlight pours through leaded glass windows, tracing generations of gatherings, conversations, and celebrations. Grand rooms unfold with intention—designed not for trends, but for permanence. Original architectural details are thoughtfully preserved, while curated updates such as radiant floor heating in several rooms support modern living with ease. Every space invites possibility: elegant entertaining, creative pursuits, quiet reflection, or vibrant daily life. Set in the heart of downtown Snohomish, the home offers something truly rare—walkable access to charming shops, riverfront dining, wine tasting, delicious bakeries, art studios and community life, while still feeling private and substantial. This is not simply a residence; it is a lifestyle rooted in authenticity, culture, and pride of ownership. Opportunities to own a home of this caliber, scale, and historical significance—with MIL/STR potential—are exceedingly rare. The Iverson House awaits its next steward—someone who understands that true luxury is not built overnight, but earned over time.
Watch Virtual Tour #1Watch Virtual Tour #3Property Features
Community: In Town - Snohomish
Multi Level
View: Mountain(s)
Cable TV
Deck
Fenced-Fully
Gas Available
Gated Entry
High Speed Internet
Outbuildings
Patio
RV Parking
Sprinkler System
Bus Line Nearby: Yes
Exterior: Brick
Exterior: Wood
Exterior: Wood Products
Roof: Composition
Parking: Attached Carport
Parking: Driveway
Parking: Detached Garage
Parking: Off Street
Parking: RV Parking
Year Built: 1906
2025 Taxes: $13109.00
Buyer Broker Comp.: 2.5%
Listing #: 2467360
Lot Details
Lot Size: 0.41 acres
Lot Dimensions: 150'x120'x150'x120'
Alley
Curbs
Paved
Sidewalk
Appliances That Stay
Dishwasher(s)
Disposal
Dryer(s)
Microwave(s)
Refrigerator(s)
Stove(s)/Range(s)
Washer(s)
Watch Virtual Tour #2Interior
Second Kitchen
Bath Off Primary
Ceiling Fan(s)
Dining Room
Fireplace
Fireplace (Primary Bedroom)
Security System
Sprinkler System
Vaulted Ceiling(s)
Walk-In Closet(s)
Water Heater
Wine Cellar
Cooling: None
Heating: Radiator, Other – See Remarks
Natural Gas
See Remarks
Fireplaces: 3
Schools
District: Snohomish
Elem: Central Elem
Middle: Centennial Mid
High: Snohomish High
Call or Email:
Grace Wamwere
What's Near 312 Avenue D Snohomish, WA 98290?

Information is based on data available to the associate, including county records. The information has not been verified by the associate and all information presented should be verified by the buyer. Listings are provided by Northwest Multiple Listing Service as distributed by MLS GRID. The associate represented on this web site is not a multiple listing service but is a member of a local MLS.
DMCA Notice