2396 Discovery Place Langley, WA 98260
2396 Discovery Place
Langley, WA 98260
$338,000
Land
0 Beds
0.00 Baths
0 SqFt
Active
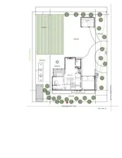
A fantastic, flat, 19,932 sqft, double-lot in Useless Bay Colony looking over the 4th green. Property includes architectural plans, engineering and septic design for 2925 sqft, 3bed / 2.75 bath contemporary home design with open-concept. A fantastic floor plan, complete with main level Primary Suite, office + bonus. Bring your builder (we can help) and finish your dream home in this sought after Golf Course and Country Club community. As a resident you'll have access to Useless Bay Golf & Country Club and its world-class amenities including a private community beach, pool, year-round fitness center, tennis & pickleball courts, an exceptional clubhouse and bar, plus optional full golf membership on this beautiful course with scenic views.
Property Features
Community: Useless Bay
Res-Less thn 1 Ac
View: Golf Course
Pool: Above Ground
Taxes: $0.00
Buyer Broker Comp.: 2.5%
Listing #: 2467146
Lot Details
Lot Size: 0.46 acres
Lot Dimensions: 158 x 125
Corner Lot
Open Space
Paved
Topography: Level
Road Sides: North and West
Road: Paved
Utilities
Electricity: On Property
Water: Available
Water: On Property
Gas: Not Available
Sewer: Not Available
Community Features
Athletic Court
CCRs
Club House
Golf
Trail(s)
Schools
District: South Whidbey Island
Elem: Buyer To Verify
Middle: Buyer To Verify
High: Buyer To Verify
Call or Email:
Grace Wamwere
What's Near 2396 Discovery Place Langley, WA 98260?

Information is based on data available to the associate, including county records. The information has not been verified by the associate and all information presented should be verified by the buyer. Listings are provided by Northwest Multiple Listing Service as distributed by MLS GRID. The associate represented on this web site is not a multiple listing service but is a member of a local MLS.
DMCA Notice