1211 N 3rd Street Renton, WA 98057
1211 N 3rd Street
Renton, WA 98057
$680,000
Residential
4 Beds
2.75 Baths
2200 SqFt
Active
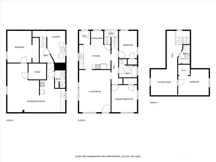
Welcome to this charming Craftsman in the heart of downtown Renton.Spacious home features original details w/wood trim, coved ceilings & built-ins yet is updated throughout (newer panel &wiring, Hvac, windows, appliances, & bathrooms).Main floor has a formal living room, large kitchen w/ breakfast nook, 2 beds & full bath.Upstairs find a primary suite w/a versatile living space off the bdrm, an office nook & a full bath.Lower lvl w/a bdrm, ¾ bath, kitchen & living room can be used for guests, tenants, or airBNB.Fully-fenced lot, w/ level yard, 2 driveways & garage for plenty of parking complete this home.Walk to favorite local shops, dining, parks, the Landing & everyday amenities.Excellent commuter location next to parks & schools.
Property Features
Community: Downtown
1 Story w/Bsmnt.
Cable TV
Deck
Fenced-Fully
Gas Available
High Speed Internet
Patio
RV Parking
Exterior: Metal/Vinyl
Roof: Composition
Parking: Driveway
Parking: Detached Garage
Parking: Off Street
Parking: RV Parking
Year Built: 1932
2025 Taxes: $6577.00
Buyer Broker Comp.: 2.5%
Listing #: 2466185
Lot Details
Lot Size: 0.11 acres
Curbs
Paved
Sidewalk
Appliances That Stay
Dishwasher(s)
Disposal
Dryer(s)
Refrigerator(s)
Stove(s)/Range(s)
Washer(s)
Interior
Second Kitchen
Second Primary Bedroom
Bath Off Primary
Ceiling Fan(s)
Double Pane/Storm Window
French Doors
Loft
Vaulted Ceiling(s)
Water Heater
Cooling: None
Heating: Forced Air
Electric
Natural Gas
Call or Email:
Grace Wamwere
What's Near 1211 N 3rd Street Renton, WA 98057?

Information is based on data available to the associate, including county records. The information has not been verified by the associate and all information presented should be verified by the buyer. Listings are provided by Northwest Multiple Listing Service as distributed by MLS GRID. The associate represented on this web site is not a multiple listing service but is a member of a local MLS.
DMCA Notice