
Front of home. Left side RV parking and 2nd entrance into "bonus room"

Main entryway

Living room to the right of entry

Living room

Office/Den off the living room w/fireplace

Updated kitchen with SS appliances

Enjoy a double oven

Bonus room with huge storage closet

storage closet through the door to the left

2nd entrance w/more storage on either side

Main level bathroom

Main level laundry room with sliding barn doors for entry

Large dining area

Hallway from dining to laundry and main level bathroom

Dining room to the left of the main entry

Primary bedroom w/en-suite

Walk in closet in primary

Primary bathroom with bathtub and an additional stand up shower

2nd bathroom upstairs

Bedroom 2

Bedroom 3

Bedroom 4

Large patio out back

Finished 2 car garage/shop. Dog run to the left of the garage

Garden space

Huge driveway offers lots of parking

Front of garage

Directly across from Jenks park and the lake!

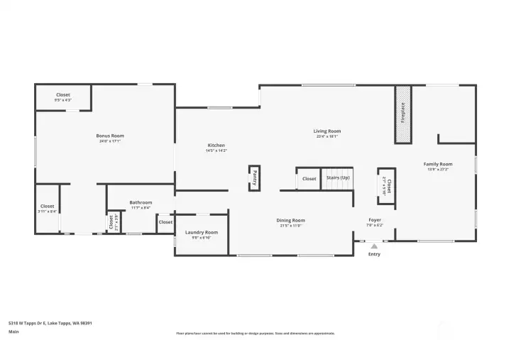
Main Floor

Upper Floor