2811 S 375th Place #Lot11 Federal Way, WA 98003

Model Home, will convert to original garage design

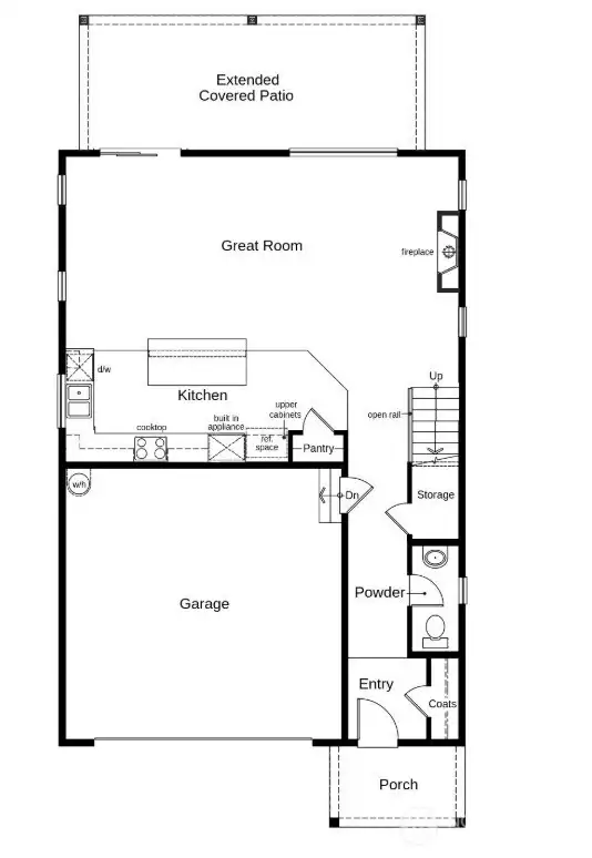
Spacious great room with gas fireplace.

Beautiful modern open concept kitchen with upgraded appliances and gourmet configuration with stainless steel range hood.

Ample pantry for your Costco trips located just minutes away!

Upgraded Extended Covered Patio Slab next beautifully landscaped low maintenance yard. Great for outdoor cooking and entertaining!

Breakfast nook/dining area off the great room as well.

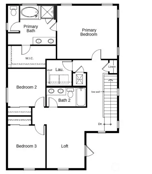
Fabulous loft/flex space at the top of the stairs, perfect for extended entertaining or whatever you choose!

Gorgeous at every angle!

Already equipped with brand new washer and dryer, just move in!

Spacious primary bedroom with plenty of daylight!

Gorgeous Suoer Primary 5 piece master bath with Upgraded tiles and features. Also featuring a large walk in closet!

Lot 11 floorplan

Lot 11 floor 2
2811 S 375th Place #Lot11
Federal Way, WA 98003
$789,950
Residential
3 Beds
2.50 Baths
2070 SqFt
Pending
Welcome to Mason Heights in Federal Way — now nearly sold out! Don’t miss your opportunity to own this beautifully appointed 2,070 sq. ft. model home featuring 3 bedrooms, 2.5 baths, and a spacious loft. High 9' ceilings create an airy, open atmosphere from the moment you walk in. The bright, open-concept living area centers around an inviting gas fireplace, perfect for cozy movie nights or hosting guests. The kitchen and bathrooms are enhanced with upgraded quartz countertops, stainless steel appliances (refrigerator included), stylish LVP flooring, and crisp white painted millwork and doors. Tile flooring in the bathrooms adds both durability and a modern touch. Outdoor living shines with a fully fenced and landscaped front and backyard, complete with an irrigation system. The expansive extended covered patio provides the perfect setting for year-round relaxation and entertaining. All of this is nestled in a prime location just minutes from beautiful 5-Mile Lake Park and under 5 minutes to I-5, Hwy 167, and Hwy 18 — truly a commuter’s dream. Tour this fully completed model home today before it’s gone!
Watch Virtual Tour #1Property Features
Community: Federal Way
2 Story
Cable TV
Fenced-Fully
Gas Available
High Speed Internet
Patio
New Construction: Yes
Bus Line Nearby: Yes
Exterior: Cement Planked
Roof: Composition
Parking: Attached Garage
Year Built: 2024
HOA Dues: $122
2025 Taxes: $0.00
Buyer Broker Comp.: %%
Listing #: 2465256
Lot Details
Lot Size: 0.10 acres
Curbs
Paved
Sidewalk
Appliances That Stay
Dishwasher
Disposal
Double Oven
Dryer
Microwave
Refrigerator
Stove(s)/Range(s)
Washer
Interior
Bath Off Primary
Fireplace
Water Heater
Cooling: Forced Air, 90%+ High Efficiency, Heat Pump
Heating: 90%+ High Efficiency, Heat Pump, Forced Air
Electric
Natural Gas
Fireplaces: 1
Enviromental Certs
Northwest ENERGY STAR®
Community Features
CCRs
Playground
Schools
District: Federal Way
Elem: Buyer To Verify
Middle: Buyer To Verify
High: Buyer To Verify
Call or Email:
Grace Wamwere
What's Near 2811 S 375th Place #Lot11 Federal Way, WA 98003?

Information is based on data available to the associate, including county records. The information has not been verified by the associate and all information presented should be verified by the buyer. Listings are provided by Northwest Multiple Listing Service as distributed by MLS GRID. The associate represented on this web site is not a multiple listing service but is a member of a local MLS.
DMCA Notice