2341 Libbey Road Coupeville, WA 98239
2341 Libbey Road
Coupeville, WA 98239
$484,900
Residential
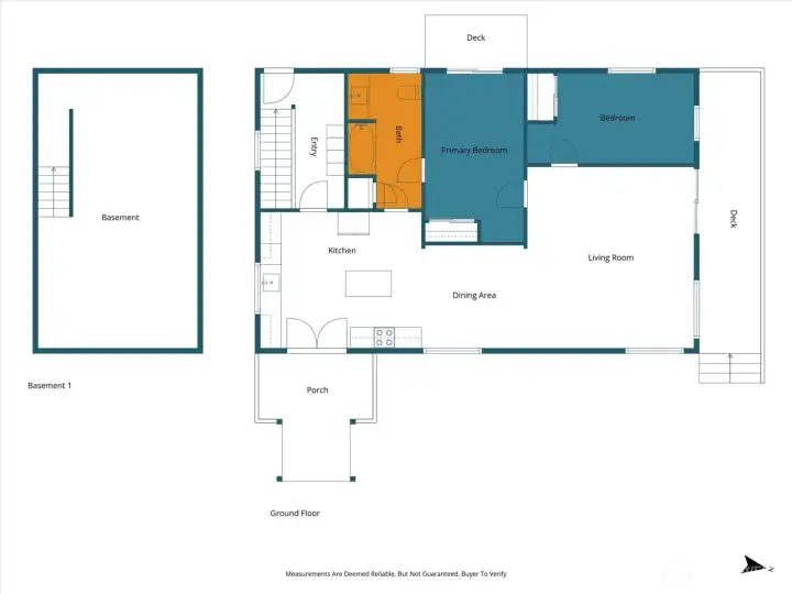
2 Beds
1.00 Baths
1146 SqFt
Pending
Escape to your own Whidbey Island cabin retreat, remodeled and move-in ready. This charming 2-bed, 1-bath home is nestled on 1.5 acres offering modern comfort with room to grow. Features include a new 3-bedroom septic system, brand-new well, and all-new appliances ensuring a peace of mind. The interior shines with elegant maple cabinets, brushed black granite countertops, and warm lodge hickory laminate flooring. The property is ready for expansion with space to build a shop, DADU, or ADU, with access to a builder for future development options. Backing to a trail system, this home offers the perfect blend of privacy minutes away from Penn Cove and State Parks. Ideal for urbanites wanting to escape to a piece of island magic!
Watch Virtual Tour #1Property Features
Community: Coupeville
1 Story w/Bsmnt.
Cable TV
Outbuildings
RV Parking
Exterior: Wood
Roof: Composition
Parking: Driveway
Parking: RV Parking
Year Built: 1937
2025 Taxes: $2996.18
Buyer Broker Comp.: 2.5%
Listing #: 2464322
Lot Details
Lot Size: 1.58 acres
Paved
Appliances That Stay
Dishwasher(s)
Refrigerator(s)
Stove(s)/Range(s)
Interior
Double Pane/Storm Window
Cooling: Heat Pump
Heating: Heat Pump
Electric
Schools
District: Coupeville
Elem: Buyer To Verify
Middle: Buyer To Verify
High: Buyer To Verify
Call or Email:
Grace Wamwere
What's Near 2341 Libbey Road Coupeville, WA 98239?

Information is based on data available to the associate, including county records. The information has not been verified by the associate and all information presented should be verified by the buyer. Listings are provided by Northwest Multiple Listing Service as distributed by MLS GRID. The associate represented on this web site is not a multiple listing service but is a member of a local MLS.
DMCA Notice