2606 Wonderland Way Port Townsend, WA 98368
2606 Wonderland Way
Port Townsend, WA 98368
$496,600
Residential
4 Beds
3.00 Baths
2066 SqFt
Active
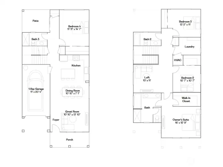
Welcome to the South-facing Harbor on homesite 81 at Madrona Ridge, a beautiful Lennar community. This home features an open-concept layout among the great room, dining area, and gourmet kitchen. The first floor includes a bedroom and full bathroom, ideal for a home office or guest suite. Outside, enjoy a covered back patio. Upstairs offers a versatile loft and three bedrooms, including the owner’s suite with a spa-like bathroom and walk-in closet. Enjoy added privacy with no neighbors directly behind the home, offering a more peaceful and secluded backyard setting. With Lennar’s signature Everything’s Included®, enjoy stainless steel appliances, quartz countertops, shaker-style cabinetry and more—all at no extra cost. Buyer’s broker must be registered during the customer’s first interaction with a Lennar Associate to be eligible for compensation.
Watch Virtual Tour #1Property Features
Community: Port Townsend
2 Story
New Construction: Yes
Exterior: Cement Planked
Roof: Composition
Parking: Driveway
Parking: Attached Garage
Year Built: 2026
HOA Dues: $69
2026 Taxes: $5207.58
Buyer Broker Comp.: 2.5%
Listing #: 2461636
Lot Details
Lot Size: 0.09 acres
Curbs
Paved
Sidewalk
Appliances That Stay
Dishwasher(s)
Disposal
Microwave(s)
Refrigerator(s)
Stove(s)/Range(s)
Interior
Bath Off Primary
Dining Room
Loft
Walk-In Closet(s)
Water Heater
Dbl Pane/Storm Window
Cooling: Central A/C, Forced Air, 90%+ High Efficiency, Heat Pump
Heating: 90%+ High Efficiency, Heat Pump, Forced Air
Electric
Community Features
Trail(s)
Open Houses
Feb 21: 11:00 AM - 4:00 PM
Feb 22: 11:00 AM - 4:00 PM
Schools
District: Port Townsend #50
Elem: Salish Coast Elementary
Middle: Blue Heron Mid
High: Port Townsend High
Call or Email:
Grace Wamwere
What's Near 2606 Wonderland Way Port Townsend, WA 98368?

Information is based on data available to the associate, including county records. The information has not been verified by the associate and all information presented should be verified by the buyer. Listings are provided by Northwest Multiple Listing Service as distributed by MLS GRID. The associate represented on this web site is not a multiple listing service but is a member of a local MLS.
DMCA Notice