9936 Barnes Lane S Tacoma, WA 98444
9936 Barnes Lane S
Tacoma, WA 98444
$220,000
Land
0 Beds
0.00 Baths
0 SqFt
Active
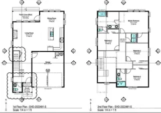
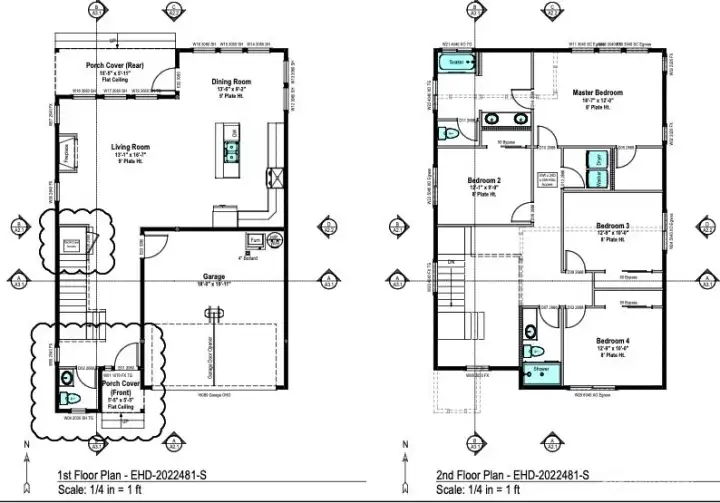
PERMITS APPROVED for a 1,964 sq. ft. single-family home. This is one of the last chances to build an SFR in this area now that the zoning has shifted to Urban Corridor. Great opportunity to grab a truly build-ready lot. The seller is also open to selling the adjacent lot at a bundled discount. All the heavy lifting is done, plans and permits are fully approved and paid for. Utilities are available in the street. With the new Urban Corridor zoning, there’s also potential for a multifamily project with revised plans.
Property Features
Community: Parkland
Res-Less thn 1 Ac
Pool: Above Ground
2025 Taxes: $1325.00
Buyer Broker Comp.: 2%
Listing #: 2459312
Lot Details
Lot Size: 0.18 acres
Road: Access Easement
Road: Gravel
Utilities
Electricity: In Street
Water: Available
Water: In Street
Gas: Not Available
Sewer: In Street
Schools
District: Franklin Pierce
Call or Email:
Grace Wamwere
What's Near 9936 Barnes Lane S Tacoma, WA 98444?

Information is based on data available to the associate, including county records. The information has not been verified by the associate and all information presented should be verified by the buyer. Listings are provided by Northwest Multiple Listing Service as distributed by MLS GRID. The associate represented on this web site is not a multiple listing service but is a member of a local MLS.
DMCA Notice